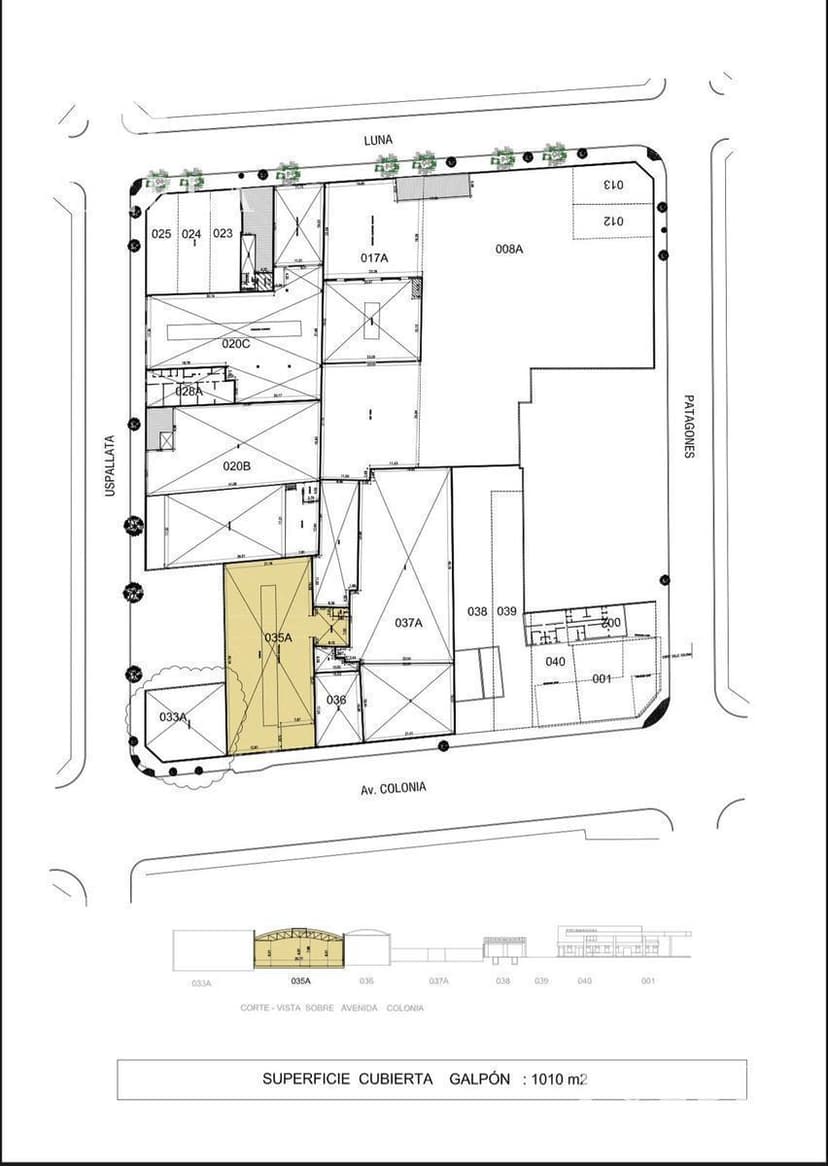
Galpón en Parque Patricios Mixtura 3 - Colonia al… - Roomix