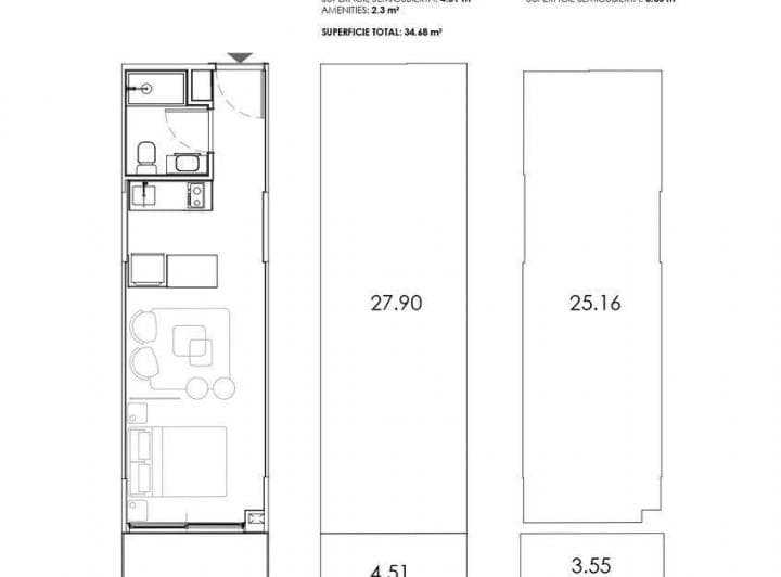
Monoambiente con amenities en edificio de categorí… - Roomix