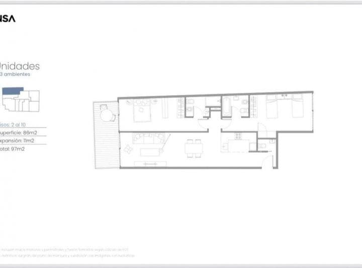
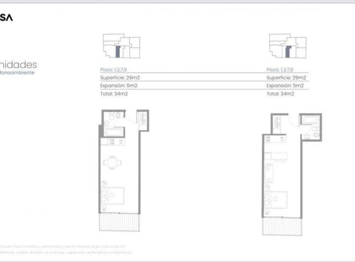
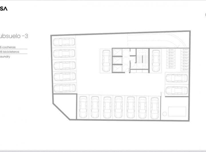
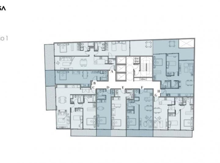
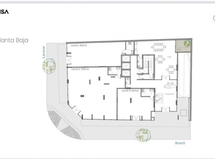
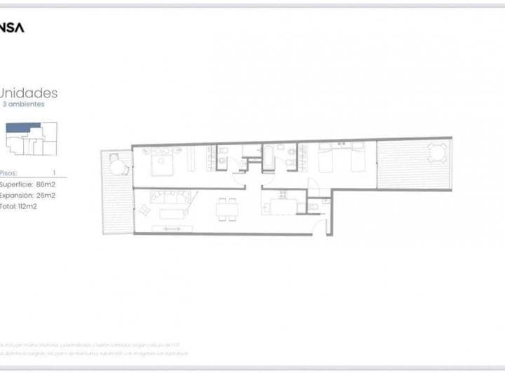
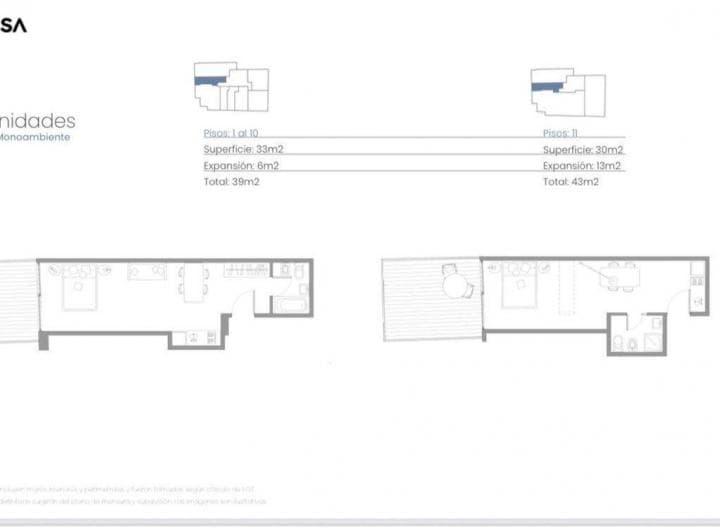
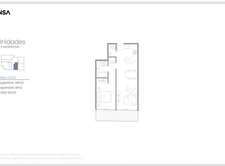
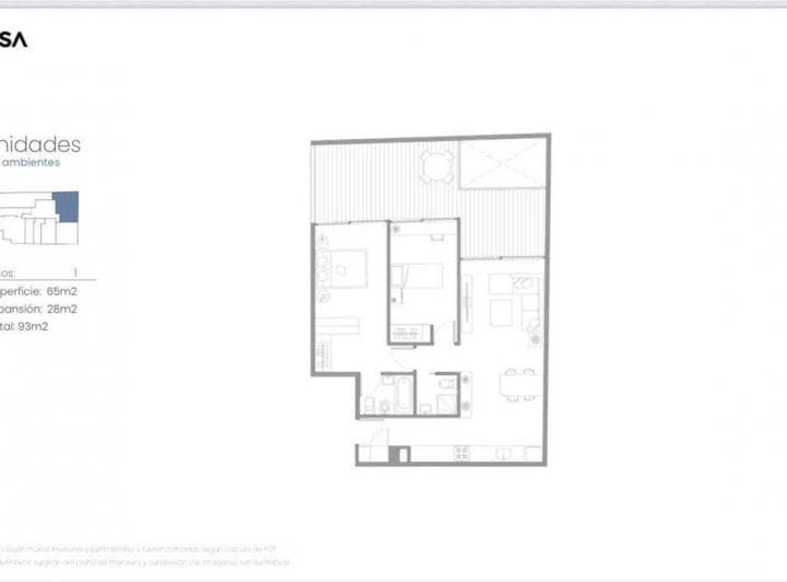
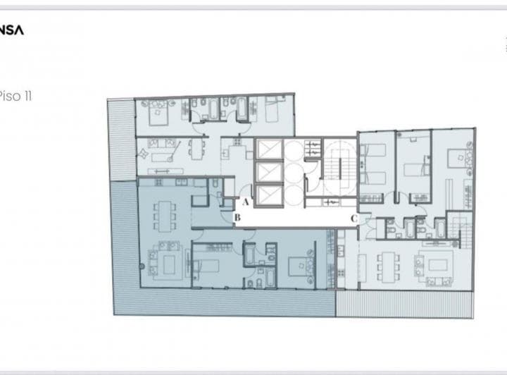
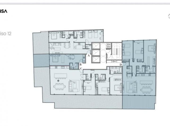
VTA CHACARITA MONOAMBIENTE POZO AMENITIES PREMIUM… - Roomix