Estado de la propiedad
Esta propiedad ya fue vendida.
Revisá otras oportunidades de compra similares disponibles actualmente.
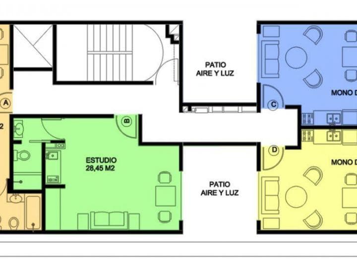
Apartamento · 1 ambientes · 1 baños · 38 m²
Tipo
Apartamento
Dormitorios
0
Baños
1
Ambientes
1
Área Total
38 m²
Área Cubierta
35 m²
Antigüedad
8 años
Publicado
Hace 18 días
Esta propiedad ya fue vendida. Te recomendamos estas 20 alternativas en Villa Crespo para comprar.



¿Sos de esta inmobiliaria?
Reclamá tu perfil gratis y conseguí más leads calificados con IA. Sin comisiones, sin límites.
Soy el dueño de esta inmobiliaria y quiero reclamar mi perfilLos derechos de los datos de esta propiedad pertenecen a la inmobiliaria correspondiente. Roomix utiliza múltiples fuentes de portales inmobiliarios como ZonaProp, Argenprop, Mercado Libre y otros para indexar y mostrar propiedades disponibles en Argentina. Esta información se presenta únicamente con fines informativos y de búsqueda.