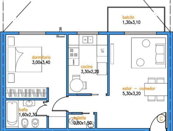
Departamento de 2 ambientes en Almagro a la venta… - Roomix