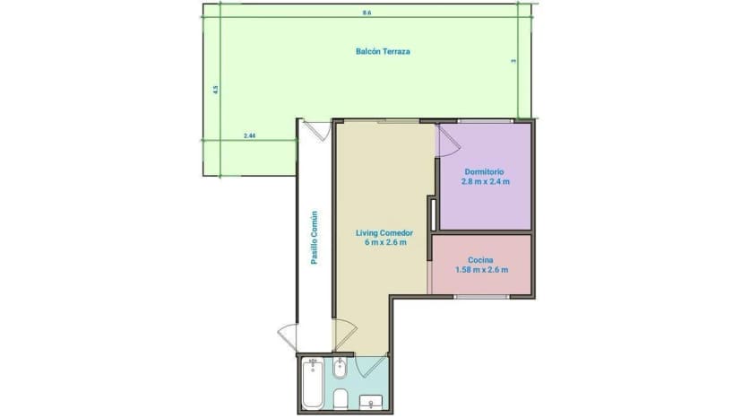
ALQUILER 2 AMB BALCON TZA BELGRANO SIN EXPENSAS… - Roomix