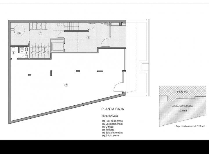
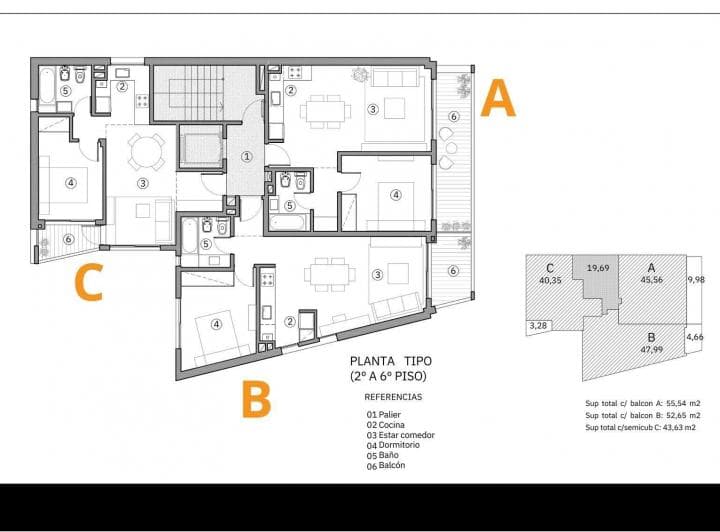
Departamento de 1 dormitorio en venta en Alvear 14… - Roomix