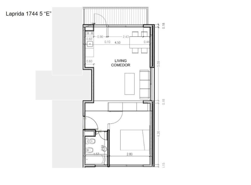
Venta Monoambiente Moderno en Recoleta, Capital F… - Roomix