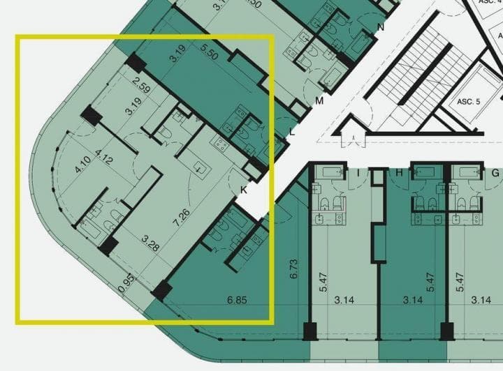
VENTA DEPTO. 3 AMBIENTES A ESTRENAR EN BARRACAS… - Roomix