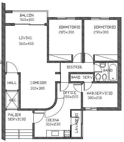
Apartamento · 3 ambientes · 2 dormitorios · 2 baños · 76 m²
Apartamento · 3 ambientes · 2 dormitorios · 2 baños · 76 m²
Tipo
Apartamento
Dormitorios
2
Baños
2

Los derechos de los datos de esta propiedad pertenecen a la inmobiliaria correspondiente. Roomix utiliza múltiples fuentes de portales inmobiliarios como ZonaProp, Argenprop, Mercado Libre y otros para indexar y mostrar propiedades disponibles en Argentina. Esta información se presenta únicamente con fines informativos y de búsqueda.

¿Sos de esta inmobiliaria?
Reclamá tu perfil gratis y conseguí más leads calificados con IA. Sin comisiones, sin límites.
Soy el dueño de esta inmobiliaria y quiero reclamar mi perfilAmbientes
3
Área Total
76 m²
Área Cubierta
73 m²
Antigüedad
35 años
Publicado
Hace 2 meses