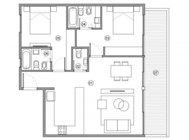
3 AMB CON BALCON CORRIDO A ESTRENAR NUÑEZ - Nuñez… - Roomix