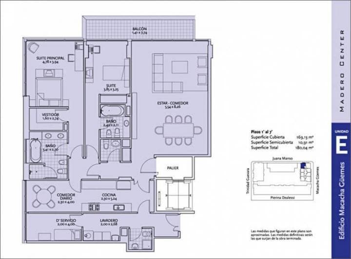
U$S 3.700 (incluye expensas y ABL) - 3 amb 180m2… - Roomix