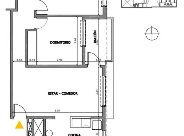
PLAN BAUEN EN VENTA ADJUDICADO DPTO 2 DORMITORIOS… - Roomix