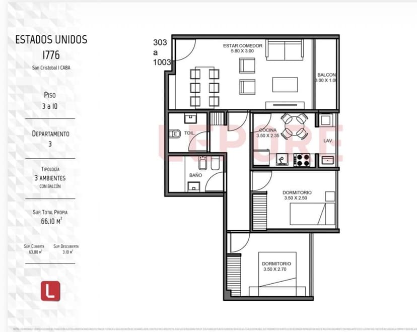
Departamento en San Cristobal - Estados Unidos al… - Roomix