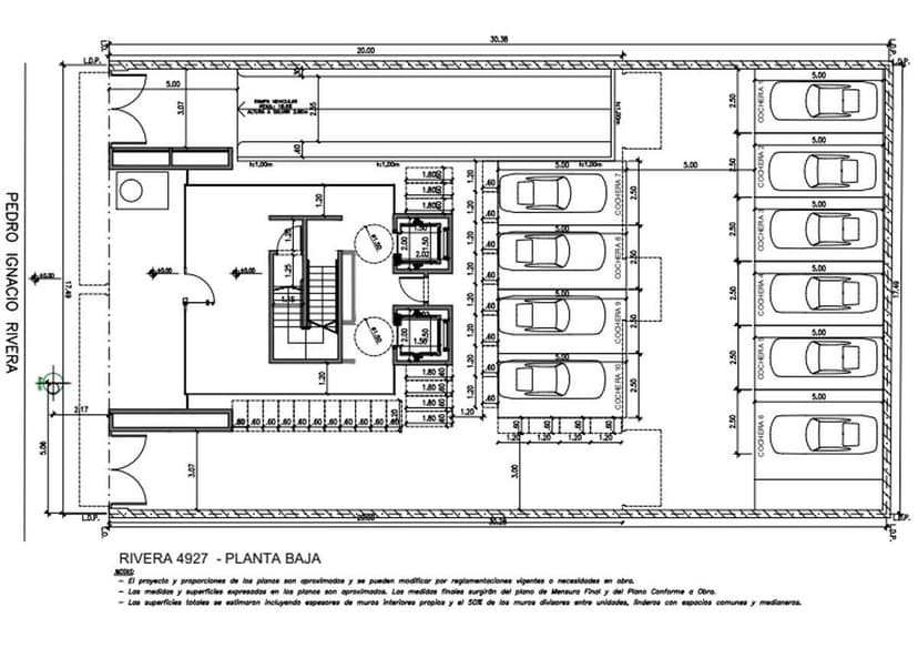
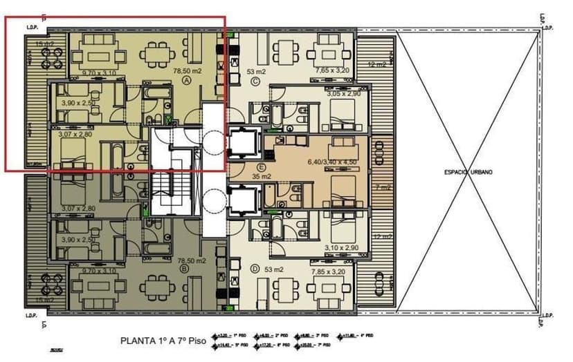
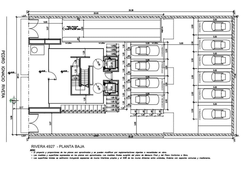
3 Ambientes / Cochera / Marzo 2026 - Doctor Pedro… - Roomix