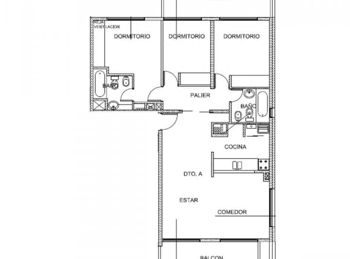
VENTA DEPTO TRES DORMITORIOS A ESTRENAR, ARROYITO… - Roomix