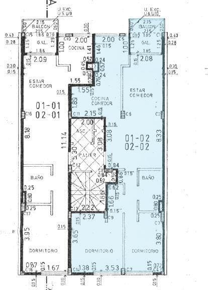
Alquiler Departamento Rosario - 2 dormitorios - Fr… - Roomix