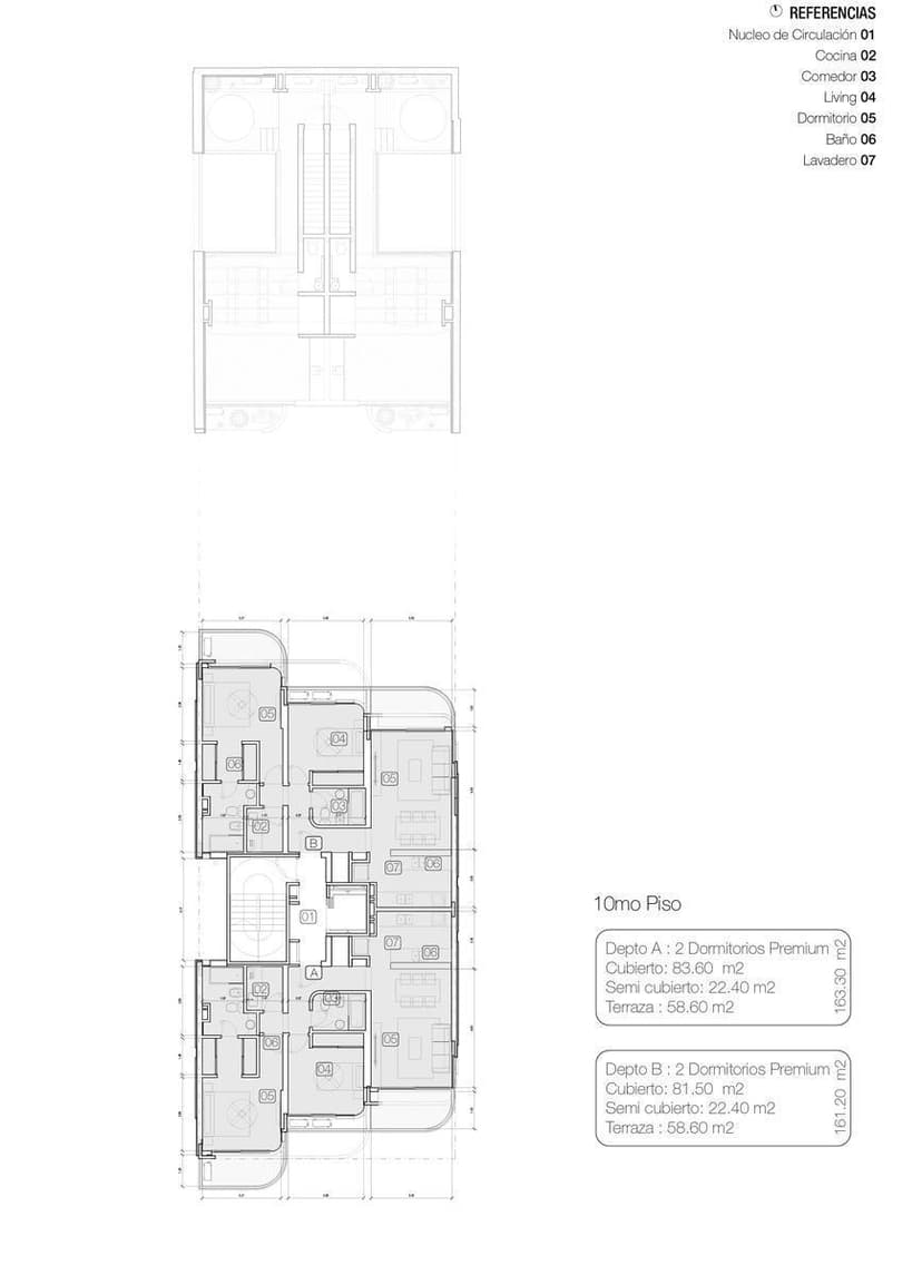
Apartamento · 6 ambientes · 2 dormitorios · 3 baños · 161 m²
Tipo
Apartamento
Dormitorios
2
Baños
3
Ambientes
6
Área Total
161 m²
Área Cubierta
81 m²
Publicado
Hace 7 meses
Evolución del precio desde la publicación original
¿Sos de esta inmobiliaria?
Reclamá tu perfil gratis y conseguí más leads calificados con IA. Sin comisiones, sin límites.
Soy el dueño de esta inmobiliaria y quiero reclamar mi perfilLos derechos de los datos de esta propiedad pertenecen a la inmobiliaria correspondiente. Roomix utiliza múltiples fuentes de portales inmobiliarios como ZonaProp, Argenprop, Mercado Libre y otros para indexar y mostrar propiedades disponibles en Argentina. Esta información se presenta únicamente con fines informativos y de búsqueda.
