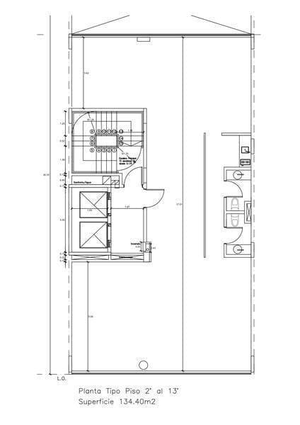
Oficina en Alquiler en Centro, Capital Federal, B… - Roomix