Excelente Nave Industrial Refaccionada! Muy Buena Ubicación.

Bodega-Galpon · 1 ambientes · 5 baños · 2479 m²

Cnel Mom 2800, Billinghurst, General San Martín
USD 1.190.000
0
En venta

Características principales de la propiedad

Tipo

Bodega-Galpon

Dormitorios

0

Baños

5

Ambientes

1

Área Total

2479

Área Cubierta

2479

Publicado

16 de abril de 2025

Descripción

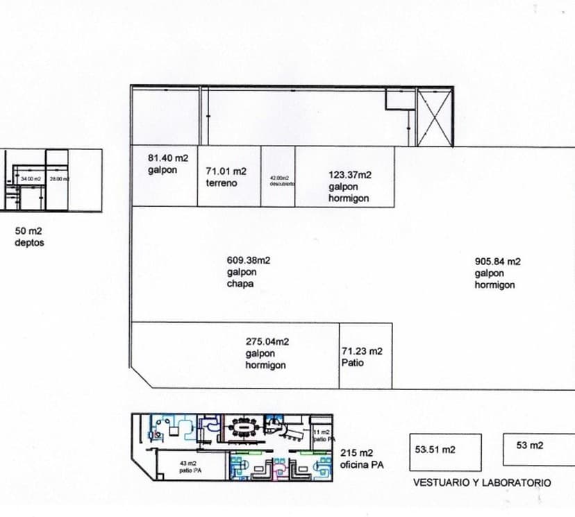
EXCELENTE NAVE INDUSTRIAL. ZONIFICACIÓN ID. Son 2250 m2 de terreno y 2437 m2 construidos. Todo en 1 sola planta, a excepción de oficinas y zonas de personal.Instalaciones y factibilidad para todos los servicios. Cloaca de desechos industriales y Gas Industrial.La nave principal tiene todo el techo p...

Ubicación

Planos

Plano 1

Análisis de mercado

Información del agente

I

Inmobiliaria

¿Sos de esta inmobiliaria?

Reclamá tu perfil gratis y conseguí más leads calificados con IA. Sin comisiones, sin límites.

Conocer más

Información sobre los datos

Los derechos de los datos de esta propiedad pertenecen a la inmobiliaria correspondiente. Roomix utiliza múltiples fuentes de portales inmobiliarios como ZonaProp, Argenprop, Mercado Libre y otros para indexar y mostrar propiedades disponibles en Argentina. Esta información se presenta únicamente con fines informativos y de búsqueda.

Propiedades cercanas

Propiedades similares