Depósito en Centro Logístico Aaa a Estrenar en Ezeiza

Bodega-Galpon · 1 ambientes · 18200 m²

Antonio Cervetti 1300, Monte Grande, Esteban Echeverría
USD 127.400
0
En alquiler

Características principales de la propiedad

Tipo

Bodega-Galpon

Dormitorios

0

Baños

0

Ambientes

1

Área Total

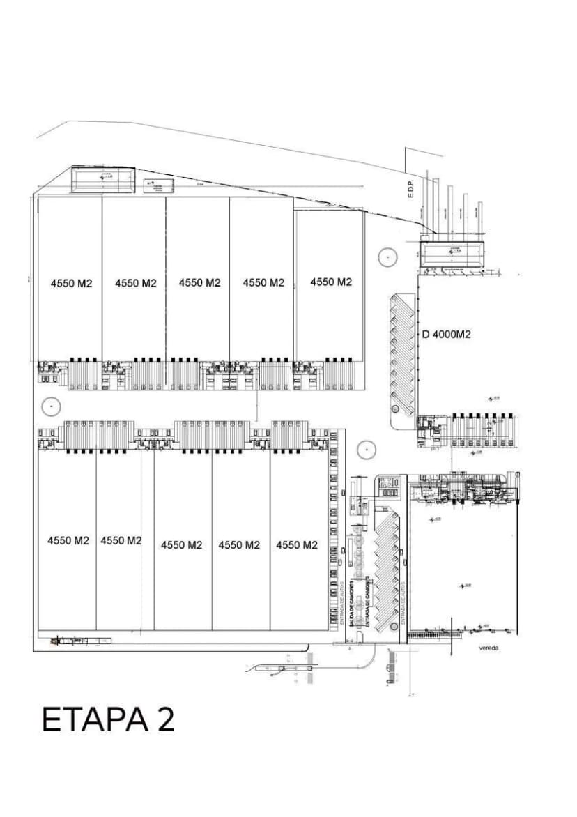
18200

Área Cubierta

18200

Publicado

26 de noviembre de 2024

Descripción

ESPACIO LOGÍSTICO Esteban Echeverría, es un Centro de Distribución Premium, a estrenar en Antonio Cervetti 1345, en Esteban Echeverría, Ezeiza.Ubicación:Ubicado estratégicamente en la localidad de Esteban Echeverría, Monte Grande, Buenos Aires. - A pocos minutos de la Capital Federal, con fácil y r...

Características

A estrenar

Planos

Plano 1
Plano 2
Plano 3

Información del agente

CASTRO CRANWELL & WEISS

CASTRO CRANWELL & WEISS

¿Sos de esta inmobiliaria?

Reclamá tu perfil gratis y conseguí más leads calificados con IA. Sin comisiones, sin límites.

Soy el dueño de esta inmobiliaria y quiero reclamar mi perfil

Información sobre los datos

Los derechos de los datos de esta propiedad pertenecen a la inmobiliaria correspondiente. Roomix utiliza múltiples fuentes de portales inmobiliarios como ZonaProp, Argenprop, Mercado Libre y otros para indexar y mostrar propiedades disponibles en Argentina. Esta información se presenta únicamente con fines informativos y de búsqueda.

Propiedades cercanas

Propiedades similares