Casa en El Naudir

Casa · 4 ambientes · 3 dormitorios · 2 baños · 1114 m²

el Naudir el Cazador, El Naudir, El Cazador
USD 558.000
0
En venta

Características principales de la propiedad

Tipo

Casa

Dormitorios

3

Baños

2

Ambientes

4

Área Total

1114

Área Cubierta

259

Publicado

8 de marzo de 2025

Descripción

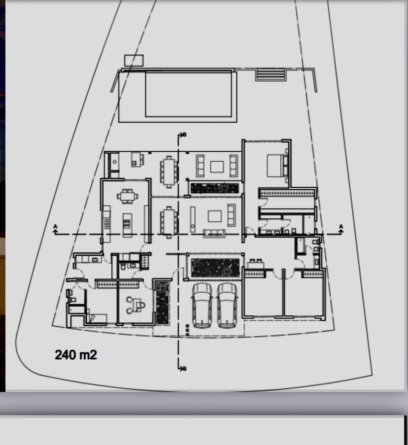
HB VENDE CASA A ESTRENAR AL AGUA EN EL NAUDIR Entrega junio 2025Hall de recepción Amplio living comedor con vista al agua cocina con isla escritorio toilette dependencia de servicio lavadero gran suite dos dormitorios mas comparten un baño galería con parrilla piletaEl Naudir es uno de los nuevos ba...

Características

A estrenarPiletaParrillaCerca de transporte publicoGimnasioSUMVista al frente

Ubicación

Planos

Plano 1
Plano 2

Análisis de mercado

Información del agente

I

Inmobiliaria

¿Sos de esta inmobiliaria?

Reclamá tu perfil gratis y conseguí más leads calificados con IA. Sin comisiones, sin límites.

Conocer más

Información sobre los datos

Los derechos de los datos de esta propiedad pertenecen a la inmobiliaria correspondiente. Roomix utiliza múltiples fuentes de portales inmobiliarios como ZonaProp, Argenprop, Mercado Libre y otros para indexar y mostrar propiedades disponibles en Argentina. Esta información se presenta únicamente con fines informativos y de búsqueda.

Propiedades cercanas

Propiedades similares