Casa en venta 3D - Funes

Casa · 4 ambientes · 3 dormitorios · 1 baños · 133 m²

Ruta 9 y Becquer - Unidad 09, Funes, Santa Fe
USD 190.157
En venta

Características principales de la propiedad

Tipo

Casa

Dormitorios

3

Baños

1

Ambientes

4

Área Total

133

Área Cubierta

112

Antigüedad

0 años

Publicado

14 de julio de 2025

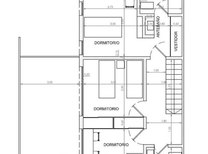
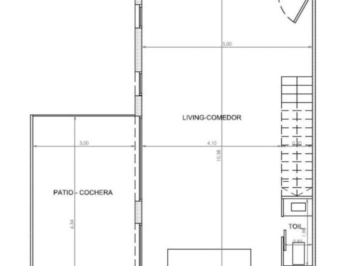
Descripción

Duplex de 3 dormitorios de 133.59 m2 con patio y lugar de estacionamiento. 112.09 m2 cubierto y 21.5 m2 de patio. En la planta baja cuenta con ingreso al living comedor con cocina semiseparada por isla. Toilette de recepción y Lavadero. En planta alta 3 dormitorios, principal con baño en suite y ves...

Características

Muy luminosoOrientacion oesteGimnasioPiletaQuinchoCocinaDormitorio en suiteJardinLavaderoLiving comedorToiletteVestidorCocheraDuplex

Ubicación

Planos

Plano 1
Plano 2
Plano 3

Análisis de mercado

Información del agente

FARINA Inmobiliaria

FARINA Inmobiliaria

¿Sos de esta inmobiliaria?

Reclamá tu perfil gratis y conseguí más leads calificados con IA. Sin comisiones, sin límites.

Conocer más

Información sobre los datos

Los derechos de los datos de esta propiedad pertenecen a la inmobiliaria correspondiente. Roomix utiliza múltiples fuentes de portales inmobiliarios como ZonaProp, Argenprop, Mercado Libre y otros para indexar y mostrar propiedades disponibles en Argentina. Esta información se presenta únicamente con fines informativos y de búsqueda.

Propiedades cercanas

Propiedades similares