Casa en Venta Chacras de Coria

Casa · 4 ambientes · 3 dormitorios · 3 baños · 311 m²

Gardens, Luján de Cuyo, Mendoza
USD 170.000
0
En venta

Características principales de la propiedad

Tipo

Casa

Dormitorios

3

Baños

3

Ambientes

4

Área Total

311

Área Cubierta

102

Publicado

2 de mayo de 2025

Descripción

MEMORIA DESCRIPTIVA ESTRUCTURA:De acuerdo a cálculo estructural. Cimientos y estructura de hormigón armado sismorresistente.Muros de envolvente de ladrillo macizo con revoque grueso y finoDivisiones internas de estructura liviana de acero galvanizado y placas de yeso Cubierta realizada co...

Características

No apto creditoCalefaccion por radiador

Ubicación

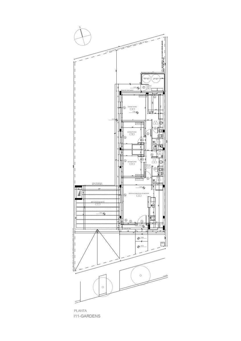
Planos

Plano 1

Análisis de mercado

Historial de Precios

Evolución del precio desde la publicación original

USD 170.000
Precio actual
Esta propiedad subió un 6.3% su precio desde que se publicó
2 may - 15 sept
+USD 10.000(+6.3%)
Precio Original
USD 160.000
Precio Actual
USD 170.000
Cambios de Precio
2

Información del agente

I

Inmobiliaria

¿Sos de esta inmobiliaria?

Reclamá tu perfil gratis y conseguí más leads calificados con IA. Sin comisiones, sin límites.

Conocer más

Información sobre los datos

Los derechos de los datos de esta propiedad pertenecen a la inmobiliaria correspondiente. Roomix utiliza múltiples fuentes de portales inmobiliarios como ZonaProp, Argenprop, Mercado Libre y otros para indexar y mostrar propiedades disponibles en Argentina. Esta información se presenta únicamente con fines informativos y de búsqueda.

Propiedades cercanas

Propiedades similares