Apto crédito! Triplex de 3 dorm con depcia. Patio y terraza.

Casa · 4 ambientes · 3 dormitorios · 4 baños · 205 m²

Conde 3400, Núñez, Capital Federal
USD 279.000
En venta

Características principales de la propiedad

Tipo

Casa

Dormitorios

3

Baños

4

Ambientes

4

Área Total

205

Área Cubierta

172

Antigüedad

29 años

Publicado

15 de septiembre de 2025

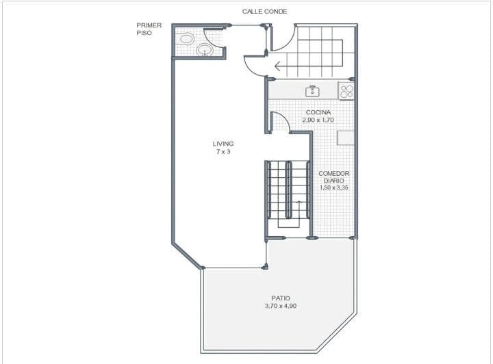
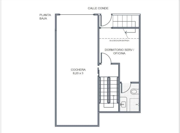
Descripción

Apto Crédito. Triplex con dependencia, cochera, patio y amplia terraza Sin expensas a 4 cuadras de Parque Saavedra Planta baja: - amplia cochera como para estacionar un auto normal más uno chico. En este momento - una parte funciona como depósito - dependencia de servicio con baño. Puede también fu...

Características

Apto creditoOrientacion esteCalefaccionHidromasajePatioCocheraTriplexSin expensasCerca de transporte publico

Ubicación

Planos

Plano 1
Plano 2
Plano 3
Plano 4
Plano 5

Análisis de mercado

Información del agente

Bramanti Propiedades

Bramanti Propiedades

¿Sos de esta inmobiliaria?

Reclamá tu perfil gratis y conseguí más leads calificados con IA. Sin comisiones, sin límites.

Conocer más

Información sobre los datos

Los derechos de los datos de esta propiedad pertenecen a la inmobiliaria correspondiente. Roomix utiliza múltiples fuentes de portales inmobiliarios como ZonaProp, Argenprop, Mercado Libre y otros para indexar y mostrar propiedades disponibles en Argentina. Esta información se presenta únicamente con fines informativos y de búsqueda.

Propiedades cercanas

Propiedades similares