Venta - Casa en Caballito

Casa · 5 ambientes · 3 dormitorios · 2 baños · 382 m²

Quito al 4100, Caballito, Capital Federal
USD 3.500
En alquiler

Características principales de la propiedad

Tipo

Casa

Dormitorios

3

Baños

2

Ambientes

5

Área Total

382

Antigüedad

35 años

Publicado

20 de agosto de 2025

Descripción

Oportunidad Real en Caballito! – Vivienda Familiar o Inversión con Potencial de Desarrollo Esta propiedad única combina comodidad, estilo y funcionalidad con un potencial de inversión excepcional, ideal para quienes buscan un hogar familiar o un proyecto de desarrollo inmobiliario. Ubicación estra...

Características

Aire acondicionadoAlarmaParrillaQuinchoBalconCocinaComedorJardinLavaderoLivingPatioSotanoToiletteVestidorCocheraIdeal para renovacionCerca de transporte publicoApto credito

Ubicación

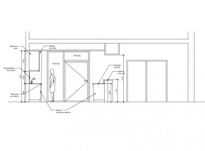
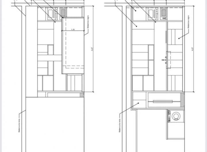
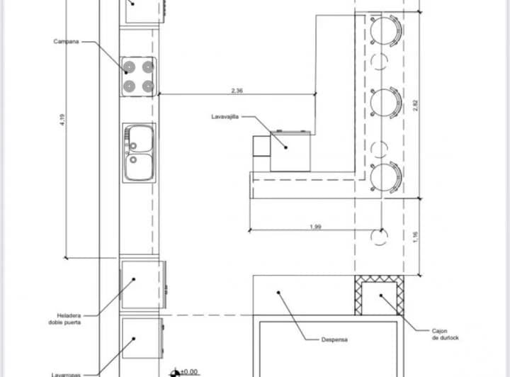
Planos

Plano 1
Plano 2
Plano 3

Información del agente

Mastres Realty

Mastres Realty

¿Sos de esta inmobiliaria?

Reclamá tu perfil gratis y conseguí más leads calificados con IA. Sin comisiones, sin límites.

Conocer más

Información sobre los datos

Los derechos de los datos de esta propiedad pertenecen a la inmobiliaria correspondiente. Roomix utiliza múltiples fuentes de portales inmobiliarios como ZonaProp, Argenprop, Mercado Libre y otros para indexar y mostrar propiedades disponibles en Argentina. Esta información se presenta únicamente con fines informativos y de búsqueda.

Propiedades cercanas

Propiedades similares