Venta Casa en San Pablo en 2 Plantas con Piscina

Casa · 5 ambientes · 4 dormitorios · 2 baños · 574 m²

SAN Pablo, San Pablo, Derqui
USD 220.000
+ $ 300.000 expensas
En venta

Características principales de la propiedad

Tipo

Casa

Dormitorios

4

Baños

2

Ambientes

5

Área Total

574

Área Cubierta

211

Publicado

5 de septiembre de 2024

Descripción

CASA DESARROLLADA EN 2 PLANTAS MUY LUMINOSA Y EXCELENTE CALIDAD CONSTRUCTIVA. FINALIZACIÓN DE OBRA ENERO 2025EN LA PLANTA BAJA NOS ENCONTRAMOS CON UN TOILETTE, UN AMPLIO COMEDOR, ESCRITORIO Y UNA COCINA CON ANAFE Y HORNO . TIENE LAVADERO Y LA GALERÍA CON BACHA Y PISCINA DE 8X4EN LA PLANTA A...

Características

Con expensasSeguridad 24hsCerca de zona gastronomicaIdeal para alquilerEn barrio privadoA estrenarPiletaAmplio living comedor

Ubicación

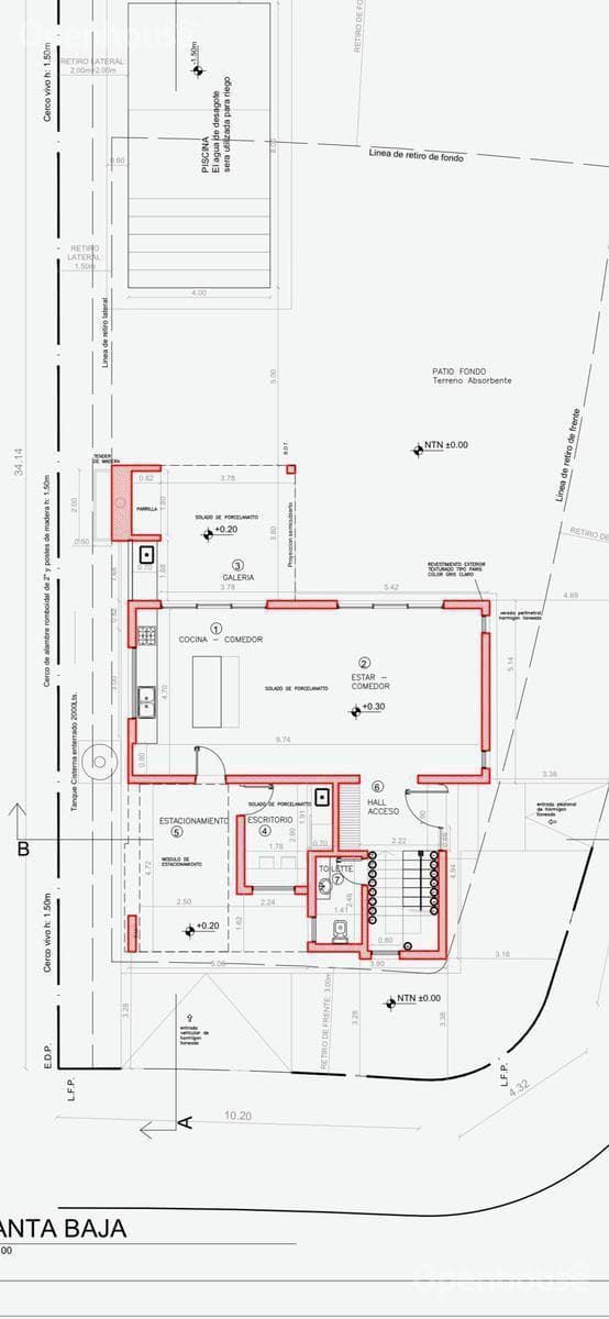
Planos

Plano 1
Plano 2

Análisis de mercado

Información del agente

I

Inmobiliaria

¿Sos de esta inmobiliaria?

Reclamá tu perfil gratis y conseguí más leads calificados con IA. Sin comisiones, sin límites.

Conocer más

Información sobre los datos

Los derechos de los datos de esta propiedad pertenecen a la inmobiliaria correspondiente. Roomix utiliza múltiples fuentes de portales inmobiliarios como ZonaProp, Argenprop, Mercado Libre y otros para indexar y mostrar propiedades disponibles en Argentina. Esta información se presenta únicamente con fines informativos y de búsqueda.

Propiedades cercanas

Propiedades similares