Venta casa con fondo piscina a estrenar Agronomía

Casa · 6 ambientes · 4 dormitorios · 5 baños · 380 m²

Terrada 3800, Agronomía, Capital Federal
USD 627.000
En venta

Características principales de la propiedad

Tipo

Casa

Dormitorios

4

Baños

5

Ambientes

6

Área Total

380

Área Cubierta

250

Antigüedad

0 años

Publicado

16 de septiembre de 2025

Descripción

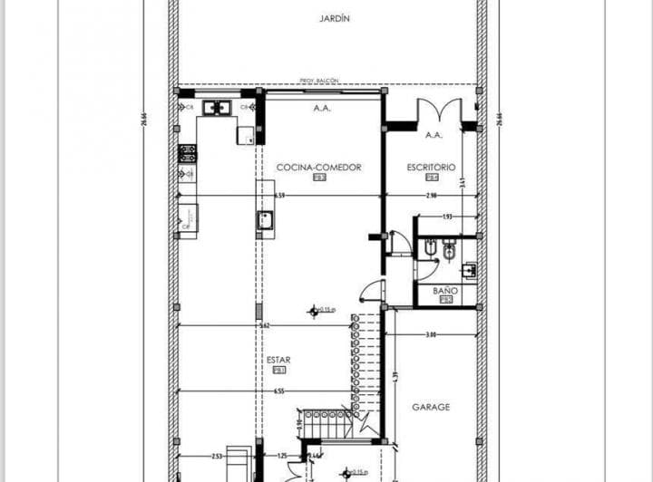
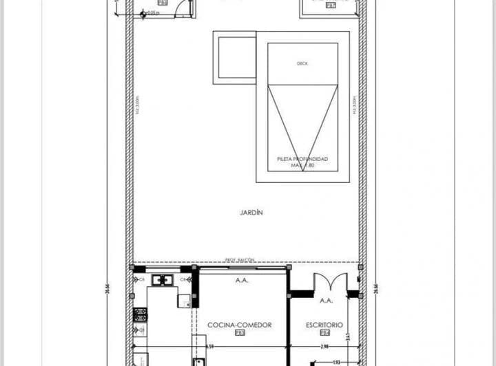
Corredor Responsable: Daniel Acosta CPI 2406 / CMCPSI 5953 - Contacto: Cristian Wagner Imponente casa en lote propio de (10.3 x 26,7) de 6 ambientes con piscina y jacuzy en construcción avanzada. Desarrollada en dos plantas. La obra aun sigue en desarrollo y esta en la ultima etapa.. El valor inc...

Características

CocinaCocheraApto creditoReciclado

Ubicación

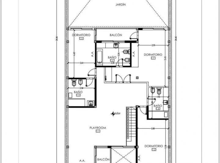
Planos

Plano 1
Plano 2
Plano 3

Análisis de mercado

Información del agente

RE/MAX Amazing

RE/MAX Amazing

¿Sos de esta inmobiliaria?

Reclamá tu perfil gratis y conseguí más leads calificados con IA. Sin comisiones, sin límites.

Conocer más

Información sobre los datos

Los derechos de los datos de esta propiedad pertenecen a la inmobiliaria correspondiente. Roomix utiliza múltiples fuentes de portales inmobiliarios como ZonaProp, Argenprop, Mercado Libre y otros para indexar y mostrar propiedades disponibles en Argentina. Esta información se presenta únicamente con fines informativos y de búsqueda.

Propiedades cercanas

Propiedades similares