Casa en Alquiler en La Diligencia, Pilara, Pilar

Casa · 7 ambientes · 5 dormitorios · 4 baños · 1012 m²

Pilara Country 100, Pilar, Pilar
USD 3.500
+ $ 1.300.000 expensas
En alquiler

Características principales de la propiedad

Tipo

Casa

Dormitorios

5

Baños

4

Ambientes

7

Área Total

1012

Área Cubierta

224

Antigüedad

0 años

Publicado

11 de septiembre de 2025

Descripción

Casa moderna en Dos Plantas, con garage semicubierto para 2 autos y cocheras descubiertas. Pileta de 8,55 x 3,80 con playa húmeda y solárium. Planta Baja: amplio y luminoso living comedor, baño para recepción, Escritorio o dormitorio con ventanal al frente. Cocina con isla que esta semi integrada al...

Características

Orientacion norteCalefaccionParrillaPiletaCocinaComedorComedor de diarioDependencia servicioEscritorioHallJardinLavaderoLivingTerrazaToiletteAccesible para personas con movilidad reducidaCocheraCon expensasAmplio livingIdeal para alquiler

Ubicación

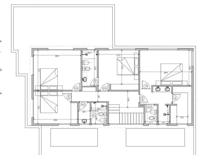
Planos

Plano 1
Plano 2

Información del agente

Susana Aravena Propiedades

Susana Aravena Propiedades

¿Sos de esta inmobiliaria?

Reclamá tu perfil gratis y conseguí más leads calificados con IA. Sin comisiones, sin límites.

Conocer más

Información sobre los datos

Los derechos de los datos de esta propiedad pertenecen a la inmobiliaria correspondiente. Roomix utiliza múltiples fuentes de portales inmobiliarios como ZonaProp, Argenprop, Mercado Libre y otros para indexar y mostrar propiedades disponibles en Argentina. Esta información se presenta únicamente con fines informativos y de búsqueda.

Propiedades cercanas

Propiedades similares