Venta. Permuta. Casa. 11 Ambientes. 432 m². Saavedra 1000.

Casa · 8 ambientes · 7 dormitorios · 8 baños · 432 m²

Saavedra 1100, San Cristobal, Capital Federal
USD 299.000
0
En venta

Características principales de la propiedad

Tipo

Casa

Dormitorios

7

Baños

8

Ambientes

8

Área Total

432

Área Cubierta

282

Publicado

28 de mayo de 2024

Descripción

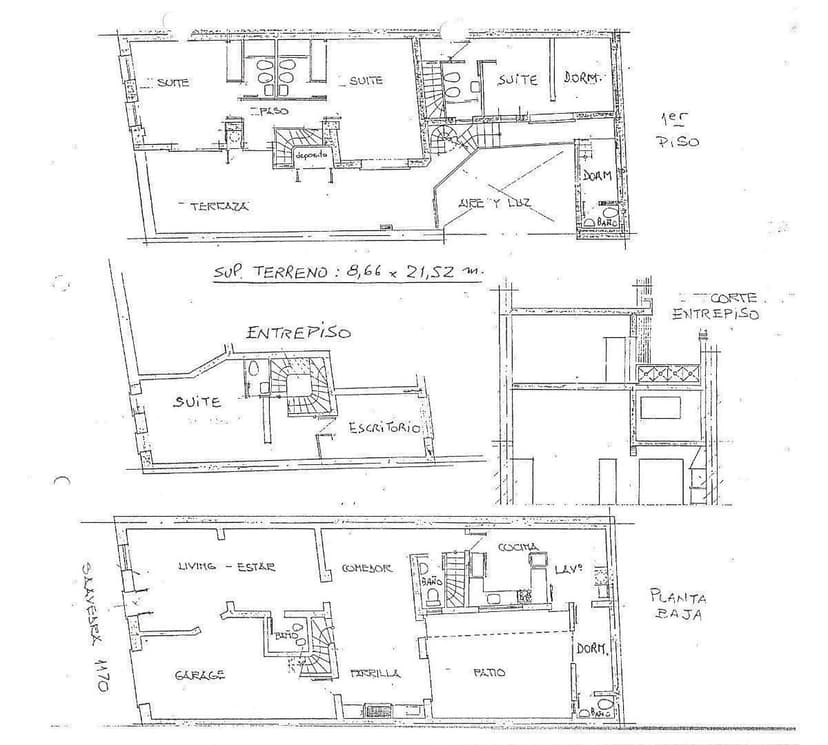
CARACTERÍSTICAS- Ambientes: 11- Superficie Total: 432 m²- Superficie Cubierta: 282 m²- Superficie Semicubierta o Descubierta: 150 m².- Comedor.- Cocina.- Lavadero.- Patio.- Terraza.- Azotea.- Baños: 8.- Muy buena ventilación.- Luminoso.- NEGOCIABLE.- PERMUTA.

Características

Terraza

Ubicación

Planos

Plano 1

Análisis de mercado

Información del agente

Riveros Negocios Inmobiliarios

Riveros Negocios Inmobiliarios

¿Sos de esta inmobiliaria?

Reclamá tu perfil gratis y conseguí más leads calificados con IA. Sin comisiones, sin límites.

Conocer más

Información sobre los datos

Los derechos de los datos de esta propiedad pertenecen a la inmobiliaria correspondiente. Roomix utiliza múltiples fuentes de portales inmobiliarios como ZonaProp, Argenprop, Mercado Libre y otros para indexar y mostrar propiedades disponibles en Argentina. Esta información se presenta únicamente con fines informativos y de búsqueda.

Propiedades cercanas

Propiedades similares