Emprendimiento en Av Montes de Oca 1005 - 68 m²

Apartamento · 1 ambientes · 1 baños · 68 m²

Av. Montes De Oca 1000 3°, Barracas, Capital Federal
USD 144.265
0
En venta

Características principales de la propiedad

Tipo

Apartamento

Dormitorios

0

Baños

1

Ambientes

1

Área Total

68

Publicado

4 de marzo de 2022

Descripción

Nuevo emprendimiento de categoría en la mejor zona de Barracas sobre Av. Montes de Oca, departamentos de 1, 2 y 3 ambientes, con cocheras opcionales. -Unidades de 1 ambiente divisible y 2 ambientes con baño y toilette, al contrafrente, orientando al Oeste. -Unidades de 3 ambientes con balcón al fre...

Características

CocheraBalconOrientacion oesteOrientacion este

Ubicación

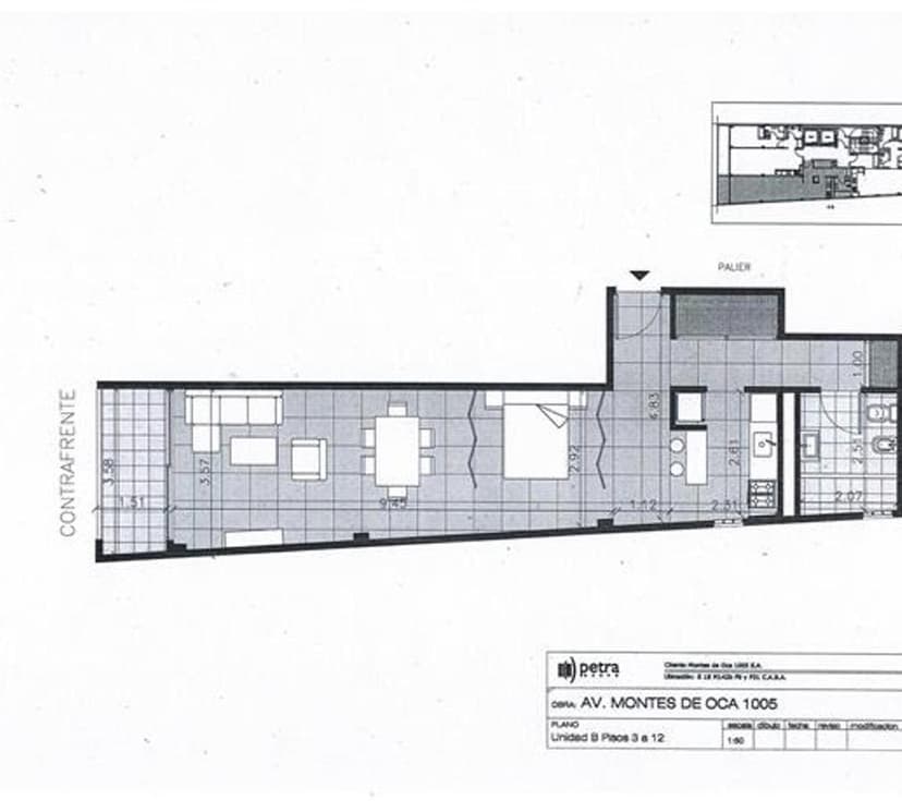
Planos

Plano 1

Análisis de mercado

Información del agente

I

Inmobiliaria

¿Sos de esta inmobiliaria?

Reclamá tu perfil gratis y conseguí más leads calificados con IA. Sin comisiones, sin límites.

Conocer más

Información sobre los datos

Los derechos de los datos de esta propiedad pertenecen a la inmobiliaria correspondiente. Roomix utiliza múltiples fuentes de portales inmobiliarios como ZonaProp, Argenprop, Mercado Libre y otros para indexar y mostrar propiedades disponibles en Argentina. Esta información se presenta únicamente con fines informativos y de búsqueda.

Propiedades cercanas

Propiedades similares