Venta - Monoambiente - Belgrano - en Pozo

Apartamento · 1 ambientes · 1 dormitorios · 1 baños · 39 m²

Luis Maria Campos al 1300, Belgrano, Capital Federal
USD 111.100
0
En venta

Características principales de la propiedad

Tipo

Apartamento

Dormitorios

1

Baños

1

Ambientes

1

Área Total

39

Área Cubierta

33

Publicado

7 de marzo de 2025

Descripción

Monoambiente al contra frente de 39 m2 totales con balcón.Invertí, viví, trabajá y estudiá en Belgrano. Ubicado en la Avenida Luis Maria Campos, a pocos metros de Barrancas de Belgrano, de los bosques de Palermo y de los principales accesos de la Ciudad, se encuentra el emprendimiento.El proyecto cu...

Características

Ideal para alquilerApto profesionalCerca de transporte publicoPiletaParrillaSolariumSUMCerca de zona gastronomicaPapeles al diaBalcon

Ubicación

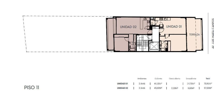
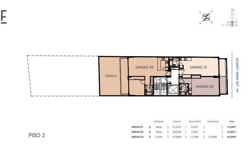
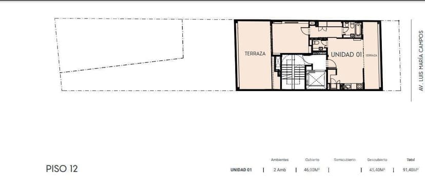
Planos

Plano 1
Plano 2
Plano 3
Plano 4
Plano 5
Plano 6
Plano 7
Plano 8
Plano 9
Plano 10
Plano 11
Plano 12
Plano 13
Plano 14
Plano 15

Análisis de mercado

Información del agente

I

Inmobiliaria

¿Sos de esta inmobiliaria?

Reclamá tu perfil gratis y conseguí más leads calificados con IA. Sin comisiones, sin límites.

Conocer más

Información sobre los datos

Los derechos de los datos de esta propiedad pertenecen a la inmobiliaria correspondiente. Roomix utiliza múltiples fuentes de portales inmobiliarios como ZonaProp, Argenprop, Mercado Libre y otros para indexar y mostrar propiedades disponibles en Argentina. Esta información se presenta únicamente con fines informativos y de búsqueda.

Propiedades cercanas

Propiedades similares