Departamento en Belgrano Chico

Apartamento · 1 ambientes · 1 baños · 33 m²

Ciudad de la Paz al 1600, Belgrano, Capital Federal
USD 100.000
+ $ 97.000 expensas
En venta

Características principales de la propiedad

Tipo

Apartamento

Dormitorios

0

Baños

1

Ambientes

1

Área Total

33

Área Cubierta

30

Antigüedad

9 años

Publicado

8 de octubre de 2024

Descripción

Excelente monoambiente al frente con balcón Cocina americana, baño completo. Edificio nuevo con laundry, parrilla y terraza. Expensas incluyen AysaUbicado a una cuadra de la avenida Cabildo con acceso a subte D y diversas líneas de colectivosPara coordinar visitas y más información escribir al Whats...

Características

BalconParrillaTerrazaCon expensasCerca de transporte publicoA estrenar

Ubicación

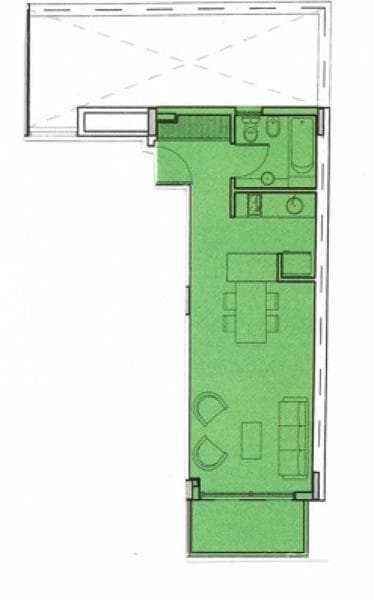
Planos

Plano 1

Análisis de mercado

Información del agente

I

Inmobiliaria

¿Sos de esta inmobiliaria?

Reclamá tu perfil gratis y conseguí más leads calificados con IA. Sin comisiones, sin límites.

Conocer más

Información sobre los datos

Los derechos de los datos de esta propiedad pertenecen a la inmobiliaria correspondiente. Roomix utiliza múltiples fuentes de portales inmobiliarios como ZonaProp, Argenprop, Mercado Libre y otros para indexar y mostrar propiedades disponibles en Argentina. Esta información se presenta únicamente con fines informativos y de búsqueda.

Propiedades cercanas

Propiedades similares