Venta Montaneses La Mejor Ubicacion!

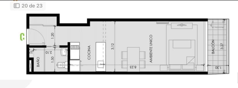
Apartamento · 1 ambientes · 1 baños · 40 m²

Montaneses 2744, Belgrano, Capital Federal
USD 112.000
+ $ 1 expensas
En venta

Características principales de la propiedad

Tipo

Apartamento

Dormitorios

0

Baños

1

Ambientes

1

Área Total

40

Área Cubierta

35

Publicado

26 de febrero de 2025

Descripción

Montañeses 2477 Departamento de un Ambiente en Belgrano en Venta Sobre la calle Montañeses, entre Monroe y Blanco encalada, a metros de la Av. Del Libertador y con cercanía a los puntos mas neurálgicos de la Capital Federal. Este edificio se desarrolla a distancia caminable del nuevo polo gastronómi...

Características

BalconParrillaCerca de transporte publicoIdeal para alquilerSeguridad 24hsA estrenar

Ubicación

Planos

Plano 1
Plano 2

Análisis de mercado

Información del agente

I

Inmobiliaria

¿Sos de esta inmobiliaria?

Reclamá tu perfil gratis y conseguí más leads calificados con IA. Sin comisiones, sin límites.

Conocer más

Información sobre los datos

Los derechos de los datos de esta propiedad pertenecen a la inmobiliaria correspondiente. Roomix utiliza múltiples fuentes de portales inmobiliarios como ZonaProp, Argenprop, Mercado Libre y otros para indexar y mostrar propiedades disponibles en Argentina. Esta información se presenta únicamente con fines informativos y de búsqueda.

Propiedades cercanas

Propiedades similares