Departamento en Venta - Bariloche - Ñireco

Apartamento · 1 ambientes · 30 m²

Nires 298, Centro, San Carlos de Bariloche
USD 73.500
0
En venta

Características principales de la propiedad

Tipo

Apartamento

Dormitorios

0

Baños

0

Ambientes

1

Área Total

30

Área Cubierta

30

Publicado

31 de enero de 2025

Descripción

Departamento en pozo en venta - Bariloche - Ñireco - Unidad funcional en planta baja, para entregar en abril de 2025. Con 30 metros cuadrados para habitar, orientación al este sobre calle Ñire - Materiales - Estructura de hormigón armado sismoresistente- Muros exteriores e interiores de mampost...

Características

Apto creditoA estrenarOrientacion este

Ubicación

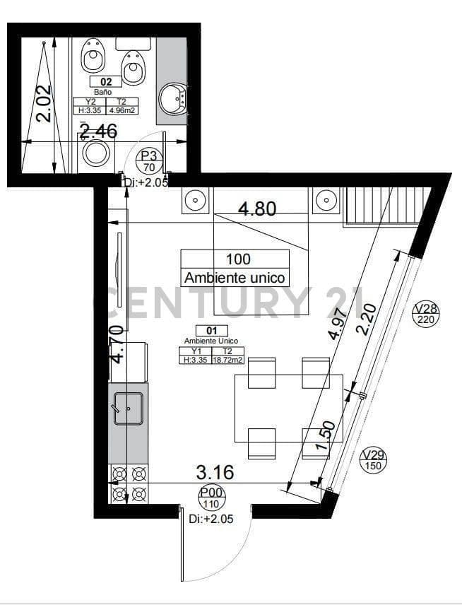
Planos

Plano 1

Análisis de mercado

Historial de Precios

Evolución del precio desde la publicación original

USD 73.500
Precio actual
Esta propiedad subió un 10.9% su precio desde que se publicó
31 ene - 25 sept
+USD 7.200(+10.9%)
Precio Original
USD 66.300
Precio Actual
USD 73.500
Cambios de Precio
2

Información del agente

I

Inmobiliaria

¿Sos de esta inmobiliaria?

Reclamá tu perfil gratis y conseguí más leads calificados con IA. Sin comisiones, sin límites.

Conocer más

Información sobre los datos

Los derechos de los datos de esta propiedad pertenecen a la inmobiliaria correspondiente. Roomix utiliza múltiples fuentes de portales inmobiliarios como ZonaProp, Argenprop, Mercado Libre y otros para indexar y mostrar propiedades disponibles en Argentina. Esta información se presenta únicamente con fines informativos y de búsqueda.

Propiedades cercanas

Propiedades similares