Venta Departamento 1 Ambiente en Vicente Lopez Sobre Av Maipu

Apartamento · 1 ambientes · 1 baños · 90 m²

Av. Maipu 680, Florida, Vicente López
USD 139.632
0
En venta

Características principales de la propiedad

Tipo

Apartamento

Dormitorios

0

Baños

1

Ambientes

1

Área Total

90

Área Cubierta

31

Publicado

4 de septiembre de 2024

Descripción

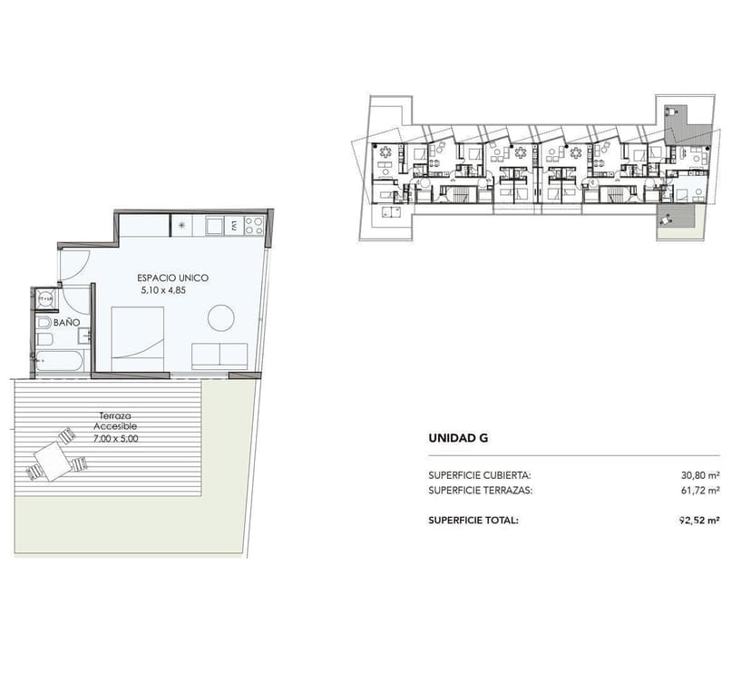
Nest Towers - Emprendimiento en Av. Maipu 680, Vicente Lopez - Excelente calidad constructiva - Inmejorable ubicación - Amenities con las mejores vistas.Monoambiente a la venta de 90.24 m2 totales. La unidad cuenta con un único espacio de 5.10 x 4.85 mts. Expansión a amplia terraza de 58.99 m2. Bañ...

Características

CocheraSeguridad 24hsPiletaTerrazaEspacio coworking

Ubicación

Planos

Plano 1
Plano 2

Análisis de mercado

Historial de Precios

Evolución del precio desde la publicación original

USD 139.632
Precio actual
Esta propiedad subió un 11.0% su precio desde que se publicó
4 sept - 25 sept
+USD 13.805(+11.0%)
Precio Original
USD 125.827
Precio Actual
USD 139.632
Cambios de Precio
2

Información del agente

I

Inmobiliaria

¿Sos de esta inmobiliaria?

Reclamá tu perfil gratis y conseguí más leads calificados con IA. Sin comisiones, sin límites.

Conocer más

Información sobre los datos

Los derechos de los datos de esta propiedad pertenecen a la inmobiliaria correspondiente. Roomix utiliza múltiples fuentes de portales inmobiliarios como ZonaProp, Argenprop, Mercado Libre y otros para indexar y mostrar propiedades disponibles en Argentina. Esta información se presenta únicamente con fines informativos y de búsqueda.

Propiedades cercanas

Propiedades similares