Departamento Monoambiente. | Calle 8 E 38 y 39 Al 300

Apartamento · 1 ambientes · 1 baños · 34 m²

Calle 8 e 38 y 39 300. Entre 38 y 39, La Plata, La Plata
USD 53.000
0
En venta

Características principales de la propiedad

Tipo

Apartamento

Dormitorios

0

Baños

1

Ambientes

1

Área Total

34

Área Cubierta

29

Publicado

2 de noviembre de 2023

Descripción

Último Monoambiente  en construcción con entrega para Septiembre 2025. Septimo piso al contrafrente con vista a la plaza OlazabalTerraza de uso común, totalmente equipada. Solarium, parrila y semicubierto,Las unidades cuentan con porcelanato de 1era calidad. Carpintería de aluminio anodizado con vid...

Características

CocheraSeguridad 24hsTerraza

Ubicación

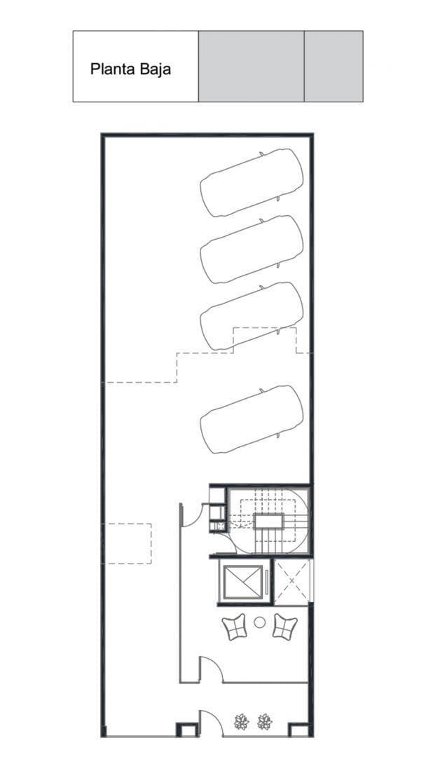
Planos

Plano 1
Plano 2
Plano 3
Plano 4

Análisis de mercado

Historial de Precios

Evolución del precio desde la publicación original

USD 53.000
Precio actual
Esta propiedad subió un 6.0% su precio desde que se publicó
2 nov - 10 oct
+USD 3.000(+6.0%)
Precio Original
USD 50.000
Precio Actual
USD 53.000
Cambios de Precio
2

Información del agente

I

Inmobiliaria

¿Sos de esta inmobiliaria?

Reclamá tu perfil gratis y conseguí más leads calificados con IA. Sin comisiones, sin límites.

Conocer más

Información sobre los datos

Los derechos de los datos de esta propiedad pertenecen a la inmobiliaria correspondiente. Roomix utiliza múltiples fuentes de portales inmobiliarios como ZonaProp, Argenprop, Mercado Libre y otros para indexar y mostrar propiedades disponibles en Argentina. Esta información se presenta únicamente con fines informativos y de búsqueda.

Propiedades cercanas

Propiedades similares