Departamento Apto Blanqueo 1 Ambiente - Monserrat

Apartamento · 1 ambientes · 1 baños · 46 m²

Mexico al 1600, Monserrat, Capital Federal
USD 68.000
0
En venta

Características principales de la propiedad

Tipo

Apartamento

Dormitorios

0

Baños

1

Ambientes

1

Área Total

46

Área Cubierta

27

Publicado

22 de noviembre de 2024

Descripción

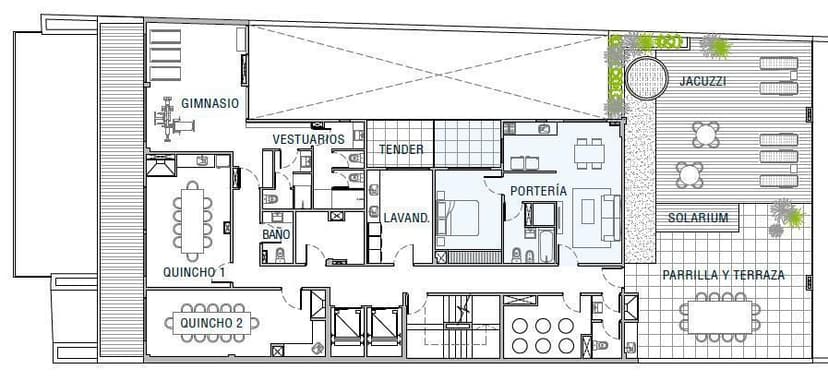
1 ambiente en construcciónFinanciado apto blanqueoGimnasio - Terraza - Parrilla - Deck - Jacuzzi - Salón de Uso Múltiples - Lavadero generalAgua caliente centralArtefactos eléctricos de cocinaPre Instalación para aires frio calorpisos de cerámica en el estar-comedor, cocina, baño, paso, dormitorio y...

Características

GimnasioTerrazaParrillaJacuzziSUM

Ubicación

Planos

Plano 1
Plano 2
Plano 3
Plano 4

Análisis de mercado

Información del agente

I

Inmobiliaria

¿Sos de esta inmobiliaria?

Reclamá tu perfil gratis y conseguí más leads calificados con IA. Sin comisiones, sin límites.

Conocer más

Información sobre los datos

Los derechos de los datos de esta propiedad pertenecen a la inmobiliaria correspondiente. Roomix utiliza múltiples fuentes de portales inmobiliarios como ZonaProp, Argenprop, Mercado Libre y otros para indexar y mostrar propiedades disponibles en Argentina. Esta información se presenta únicamente con fines informativos y de búsqueda.

Propiedades cercanas

Propiedades similares