Venta Monoambiente Nuñez

Apartamento · 1 ambientes · 1 dormitorios · 1 baños · 47 m²

vuelta de obligado 3900, Núñez, Capital Federal
USD 119.000
0
En venta

Características principales de la propiedad

Tipo

Apartamento

Dormitorios

1

Baños

1

Ambientes

1

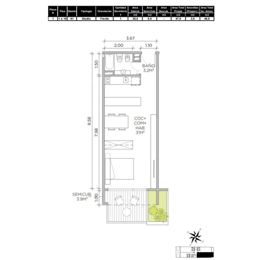
Área Total

47

Área Cubierta

38

Publicado

5 de febrero de 2025

Descripción

EDIFICIO ALPHA NUÑEZ ENTREGA AGOSTO 2025 RESUMEN EJECUTIVO Situado en la mejor ubicación de Nuñez y a pocos minutos del magnífico Parque Saavedra, a pasos de la Av. Cabildo y rodeado de servicios y accesos rápidos a todo CABA, el edificio Alpha Nuñez es un espacio inigualable para vivir hoy en...

Características

Cerca de transporte publicoPiletaTerrazaParrillaVista al rioA estrenarAccesible para personas con movilidad reducidaSUM

Ubicación

Planos

Plano 1
Plano 2

Análisis de mercado

Información del agente

I

Inmobiliaria

¿Sos de esta inmobiliaria?

Reclamá tu perfil gratis y conseguí más leads calificados con IA. Sin comisiones, sin límites.

Conocer más

Información sobre los datos

Los derechos de los datos de esta propiedad pertenecen a la inmobiliaria correspondiente. Roomix utiliza múltiples fuentes de portales inmobiliarios como ZonaProp, Argenprop, Mercado Libre y otros para indexar y mostrar propiedades disponibles en Argentina. Esta información se presenta únicamente con fines informativos y de búsqueda.

Propiedades cercanas

Propiedades similares