Departamento en Venta Amenities

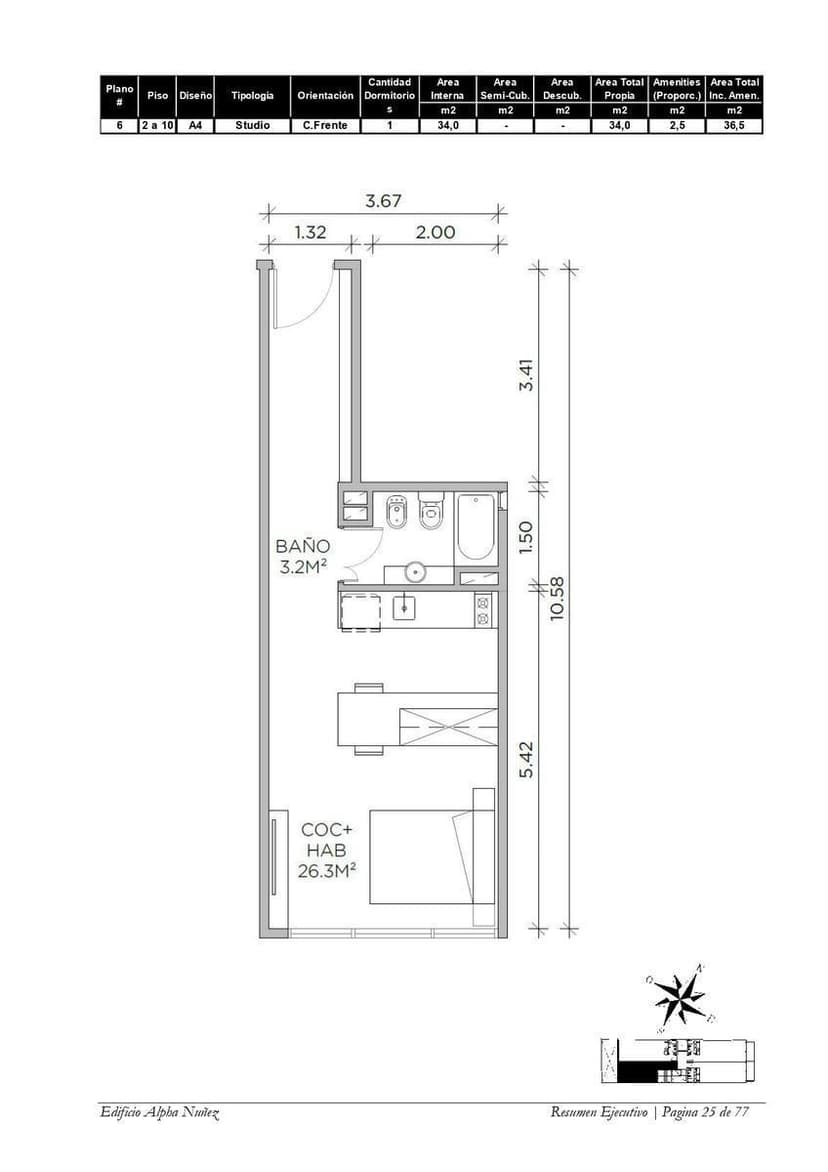
Apartamento · 1 ambientes · 1 dormitorios · 1 baños · 34 m²

Vuelta de Obligado al 3900, Núñez, Capital Federal
USD 98.600
+ $ 100.000 expensas
En venta

Características principales de la propiedad

Tipo

Apartamento

Dormitorios

1

Baños

1

Ambientes

1

Área Total

34

Área Cubierta

34

Publicado

30 de enero de 2025

Descripción

Departamento en Venta - Alpha NuñezDescubrí la combinación perfecta entre diseño, confort y ubicación en este exclusivo departamento al contrafrente en el edificio Alpha Nuñez. Ubicado en la mejor zona de Nuñez, a minutos del Parque Saavedra y a pasos de Av. Cabildo, con acceso rápido a toda CABA.Di...

Características

Cerca de transporte publicoPiletaSolariumSUMParrillaSeguridad 24hs

Ubicación

Planos

Plano 1
Plano 2

Análisis de mercado

Historial de Precios

Evolución del precio desde la publicación original

USD 98.600
Precio actual
Esta propiedad bajó un 1.4% su precio desde que se publicó
30 ene - 25 sept
USD -1.400(-1.4%)
Precio Original
USD 100.000
Precio Actual
USD 98.600
Cambios de Precio
2

Información del agente

I

Inmobiliaria

¿Sos de esta inmobiliaria?

Reclamá tu perfil gratis y conseguí más leads calificados con IA. Sin comisiones, sin límites.

Conocer más

Información sobre los datos

Los derechos de los datos de esta propiedad pertenecen a la inmobiliaria correspondiente. Roomix utiliza múltiples fuentes de portales inmobiliarios como ZonaProp, Argenprop, Mercado Libre y otros para indexar y mostrar propiedades disponibles en Argentina. Esta información se presenta únicamente con fines informativos y de búsqueda.

Propiedades cercanas

Propiedades similares