Venta Monoambiente Pileta Parrilla en Construcción Palermo Hollywood

Apartamento · 1 ambientes · 1 baños · 40 m²

El Salvador al 5400 y Humbolt, Palermo, Capital Federal
USD 83.300
0
En venta

Características principales de la propiedad

Tipo

Apartamento

Dormitorios

0

Baños

1

Ambientes

1

Área Total

40

Área Cubierta

40

Publicado

12 de noviembre de 2024

Descripción

Edificio entre medianerasLiving comedorBaño completoCocinaPiletaParrillaServicios individualesEN CONSTRUCCION

Características

PiletaParrillaA estrenar

Ubicación

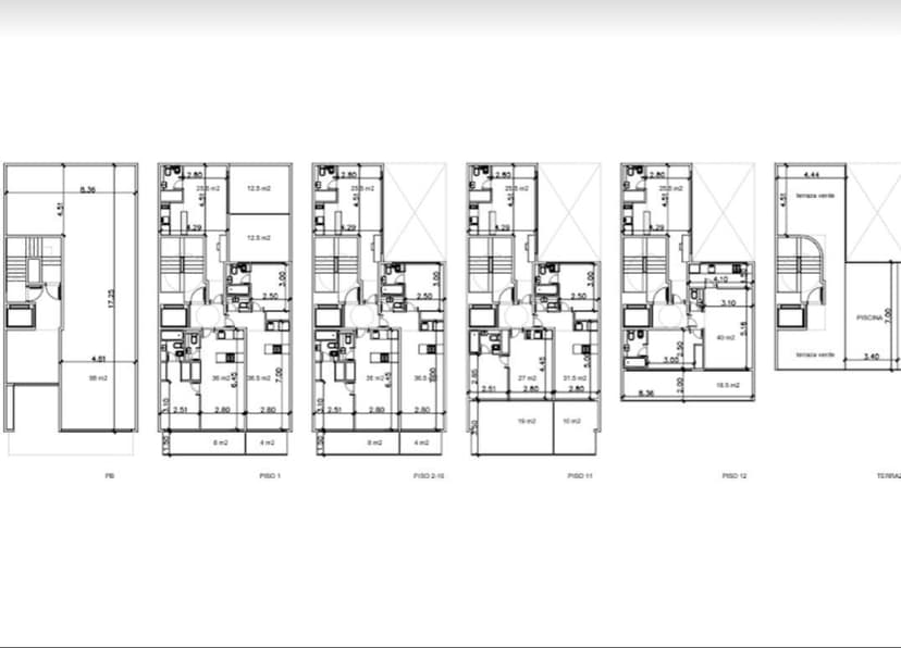
Planos

Plano 1

Análisis de mercado

Información del agente

I

Inmobiliaria

¿Sos de esta inmobiliaria?

Reclamá tu perfil gratis y conseguí más leads calificados con IA. Sin comisiones, sin límites.

Conocer más

Información sobre los datos

Los derechos de los datos de esta propiedad pertenecen a la inmobiliaria correspondiente. Roomix utiliza múltiples fuentes de portales inmobiliarios como ZonaProp, Argenprop, Mercado Libre y otros para indexar y mostrar propiedades disponibles en Argentina. Esta información se presenta únicamente con fines informativos y de búsqueda.

Propiedades cercanas

Propiedades similares