A ESTRENAR en PALERMO SOHO - IDEAL RENTA - EXPENSAS BAJAS - VENTA DEPARTAMENTO MONOAMBIENTE

Apartamento · 1 ambientes · 1 dormitorios · 1 baños · 31 m²

Gurruchaga al 1950, Palermo Soho, Palermo
USD 99.000
+ $ 500 expensas
En venta

Características principales de la propiedad

Tipo

Apartamento

Dormitorios

1

Baños

1

Ambientes

1

Área Total

31

Área Cubierta

24

Antigüedad

0 años

Publicado

14 de julio de 2025

Descripción

PALERMO SOHO - A ESTRENAR - EXCELENTE INVERSIÓN - GASTOS COMUNES BAJOS - VENTA MONOAMBIENTE Ubicado en el corazón de Palermo, a pasos de Plaza Armenia y Plaza Serrano, zona de bares, restaurantes, arte y diseño. 2º PISO “A” – Unidad al frente DISTRIBUCIÓN: Ambiente principal: 6 m x 3,5 m Cocina int...

Características

Apto para mascotasApto profesionalVista al frenteMuy luminosoOrientacion noresteLaundryBalconCocinaLiving comedorAscensorCocheraCon expensasA estrenarCerca de transporte publico

Ubicación

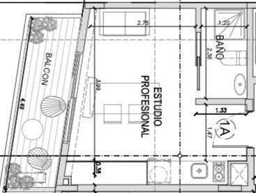
Planos

Plano 1
Plano 2

Análisis de mercado

Información del agente

LEXINTON PROPIEDADES

LEXINTON PROPIEDADES

¿Sos de esta inmobiliaria?

Reclamá tu perfil gratis y conseguí más leads calificados con IA. Sin comisiones, sin límites.

Conocer más

Información sobre los datos

Los derechos de los datos de esta propiedad pertenecen a la inmobiliaria correspondiente. Roomix utiliza múltiples fuentes de portales inmobiliarios como ZonaProp, Argenprop, Mercado Libre y otros para indexar y mostrar propiedades disponibles en Argentina. Esta información se presenta únicamente con fines informativos y de búsqueda.

Propiedades cercanas

Propiedades similares