Departamento en Venta en Palermo, Capital Federal, Buenos Aires

Apartamento · 1 ambientes · 133 m²

Cabello 3600, Recoleta, Capital Federal
USD 560.000
0
En venta

Características principales de la propiedad

Tipo

Apartamento

Dormitorios

0

Baños

0

Ambientes

1

Área Total

133

Área Cubierta

118

Publicado

17 de abril de 2025

Descripción

CABELLO AL 3600 Y UGARTECHE EN CONSTRUCCION ENTREGA 2025 133 M2 4 AMBIENTES + DEPENDENCIACOCINA CON COMEDOR DIARIOCOCHERA DISPONIBLEAMENITIES

Características

CocheraA estrenar

Ubicación

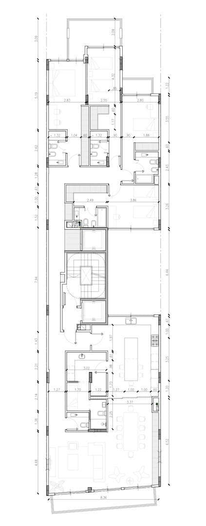
Planos

Plano 1

Análisis de mercado

Historial de Precios

Evolución del precio desde la publicación original

USD 560.000
Precio actual
Esta propiedad subió un 4.7% su precio desde que se publicó
17 abr - 25 sept
+USD 25.000(+4.7%)
Precio Original
USD 535.000
Precio Actual
USD 560.000
Cambios de Precio
2

Información del agente

I

Inmobiliaria

¿Sos de esta inmobiliaria?

Reclamá tu perfil gratis y conseguí más leads calificados con IA. Sin comisiones, sin límites.

Conocer más

Información sobre los datos

Los derechos de los datos de esta propiedad pertenecen a la inmobiliaria correspondiente. Roomix utiliza múltiples fuentes de portales inmobiliarios como ZonaProp, Argenprop, Mercado Libre y otros para indexar y mostrar propiedades disponibles en Argentina. Esta información se presenta únicamente con fines informativos y de búsqueda.

Propiedades cercanas

Propiedades similares