Venta Departamento Monoambiente en Pozo Saavedra

Apartamento · 1 ambientes · 1 dormitorios · 1 baños · 36 m²

Pinto al 4200, Saavedra, Capital Federal
USD 93.000
0
En venta

Características principales de la propiedad

Tipo

Apartamento

Dormitorios

1

Baños

1

Ambientes

1

Área Total

36

Área Cubierta

32

Publicado

23 de abril de 2025

Descripción

Unidad Monoambiente ubicada en el piso 3 al frenteTiene una superficie total de 36.64m2 de los cuales 32.76 m2 son cubiertos y 3.88 m2 semicubiertos.. Preinstalación para aire acondicionado Split. Agua caliente central. Cañería interior para internet, cable TV y telefoníaForma de pago: anticipo del...

Características

Vista al frenteCocheraCerca de transporte publicoApto creditoSin expensas

Ubicación

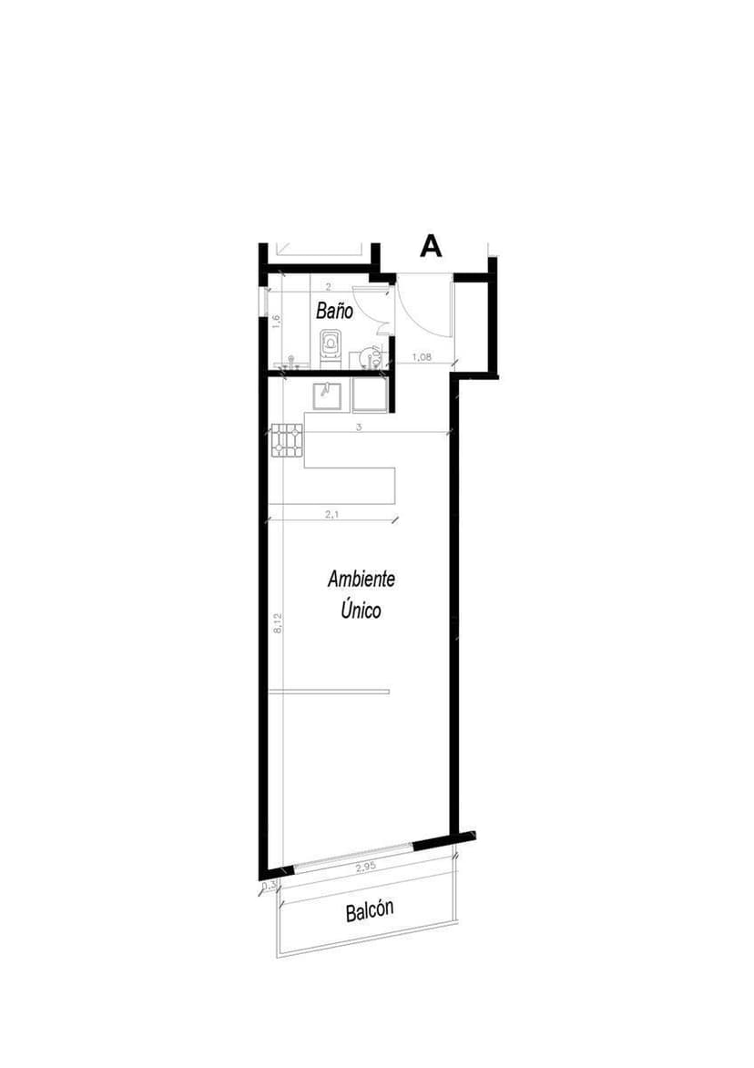
Planos

Plano 1
Plano 2

Análisis de mercado

Historial de Precios

Evolución del precio desde la publicación original

USD 93.000
Precio actual
Esta propiedad subió un 5.7% su precio desde que se publicó
23 abr - 25 sept
+USD 5.000(+5.7%)
Precio Original
USD 88.000
Precio Actual
USD 93.000
Cambios de Precio
2

Información del agente

Coldwell Banker

Coldwell Banker

¿Sos de esta inmobiliaria?

Reclamá tu perfil gratis y conseguí más leads calificados con IA. Sin comisiones, sin límites.

Conocer más

Información sobre los datos

Los derechos de los datos de esta propiedad pertenecen a la inmobiliaria correspondiente. Roomix utiliza múltiples fuentes de portales inmobiliarios como ZonaProp, Argenprop, Mercado Libre y otros para indexar y mostrar propiedades disponibles en Argentina. Esta información se presenta únicamente con fines informativos y de búsqueda.

Propiedades cercanas

Propiedades similares