Venta Departamento Monoambiente con Balcón Villa Crespo

Apartamento · 1 ambientes · 1 dormitorios · 1 baños · 42 m²

Thames al 1100, Villa Crespo, Capital Federal
USD 109.459
0
En venta

Características principales de la propiedad

Tipo

Apartamento

Dormitorios

1

Baños

1

Ambientes

1

Área Total

42

Área Cubierta

35

Publicado

22 de abril de 2025

Descripción

Edificio en Construcción en esquina en Palermo / Villa CrespoLas 10 plantas ya están construidas, se están haciendo terminaciones interiores (Entrega Marzo 2026)Amenities:* Parrilla* SUM* DECK / TERRAZA* GYM* LaundyTodos los departamentos con Muy buenos balcones y luminosos. Doble orientación Este...

Características

A estrenarParrillaSUMTerrazaGimnasioBalconOrientacion esteOrientacion norte

Ubicación

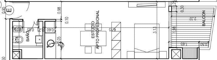
Planos

Plano 1
Plano 2

Análisis de mercado

Información del agente

Central Real Estate Argentina

Central Real Estate Argentina

¿Sos de esta inmobiliaria?

Reclamá tu perfil gratis y conseguí más leads calificados con IA. Sin comisiones, sin límites.

Conocer más

Información sobre los datos

Los derechos de los datos de esta propiedad pertenecen a la inmobiliaria correspondiente. Roomix utiliza múltiples fuentes de portales inmobiliarios como ZonaProp, Argenprop, Mercado Libre y otros para indexar y mostrar propiedades disponibles en Argentina. Esta información se presenta únicamente con fines informativos y de búsqueda.

Propiedades cercanas

Propiedades similares