ALQUILER DOS AMBIENTES BALCON AMENITIES VILLA URQUIZA

Apartamento · 1 ambientes · 1 dormitorios · 1 baños · 45 m²

LA PAMPA 5000, Villa Urquiza, Capital Federal
$ 600.000
+ $ 195.000 expensas
En alquiler

Características principales de la propiedad

Tipo

Apartamento

Dormitorios

1

Baños

1

Ambientes

1

Área Total

45

Área Cubierta

42

Antigüedad

10 años

Publicado

6 de agosto de 2025

Descripción

**** En pleno corazon de Villa Urquiza. La Pampa y Av. Triunvirato. A 100 metros de estacion Echeverria Subterraneo Linea B y centros comerciales. Transporte en todas direcciones. Unico departamento de dos ambientes. Primer piso contrafrente super silencioso. Living comedor con cocina integrada y sa...

Características

Apto para mascotasApto profesionalVista al contrafrenteMuy luminosoOrientacion norteAire acondicionadoCalefaccionLaundryParrillaSolariumBalconCocinaHallLavaderoLiving comedorTerrazaEncargado VigilanciaAscensorAccesible para personas con movilidad reducidaCocheraCon expensasCerca de transporte publicoCon garantia

Ubicación

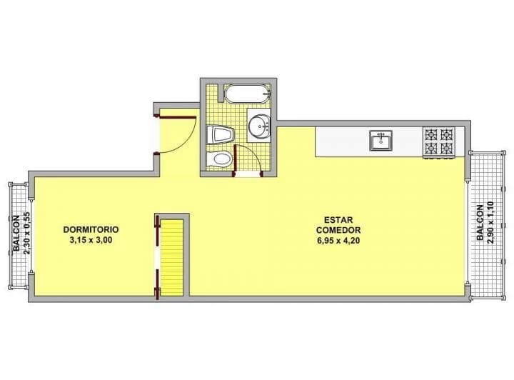
Planos

Plano 1
Plano 2

Información del agente

JORGE LA TORRE Gestion Inmobiliaria

JORGE LA TORRE Gestion Inmobiliaria

¿Sos de esta inmobiliaria?

Reclamá tu perfil gratis y conseguí más leads calificados con IA. Sin comisiones, sin límites.

Conocer más

Información sobre los datos

Los derechos de los datos de esta propiedad pertenecen a la inmobiliaria correspondiente. Roomix utiliza múltiples fuentes de portales inmobiliarios como ZonaProp, Argenprop, Mercado Libre y otros para indexar y mostrar propiedades disponibles en Argentina. Esta información se presenta únicamente con fines informativos y de búsqueda.

Propiedades cercanas

Propiedades similares