alquiler Departamento monoambiente en Villa Urquiza a estrenar

Apartamento · 1 ambientes · 1 dormitorios · 1 baños · 22 m²

Donado al 2000, Villa Urquiza, Capital Federal
$ 499.990
+ $ 65.000 expensas
En alquiler

Características principales de la propiedad

Tipo

Apartamento

Dormitorios

1

Baños

1

Ambientes

1

Área Total

22

Área Cubierta

22

Antigüedad

0 años

Publicado

5 de septiembre de 2025

Descripción

ALQUILER MONOAMBIENTE VILLA URQUIZA - 1 ambiente ALQUILER FRENTE A PLAZA ZAPIOLA A ESTRENAR, frente a plaza Zapiola Ubicado en el 3er piso por ascensor Baño completo Cocina completa con horno y anafe marca Samsung electrico, con muebles bajo mesada y alacena espacio para heladera y microondas. Co...

Características

Apto profesionalDisposicion lateralOrientacion noroesteCocinaAscensorCocheraA estrenarCerca de transporte publicoIdeal para alquiler

Ubicación

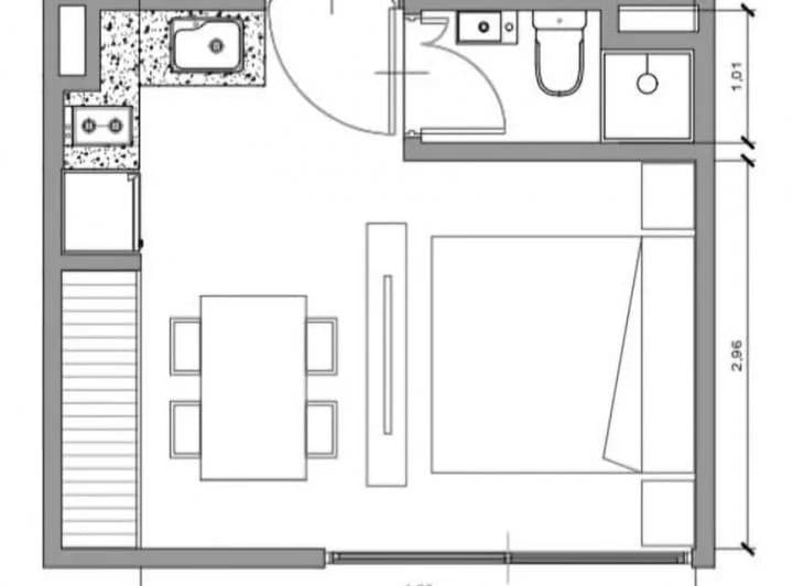
Planos

Plano 1
Plano 2

Historial de Precios

Evolución del precio desde la publicación original

$ 499.990
Precio actual
Esta propiedad bajó un 0.0% su precio desde que se publicó
5 sept - 24 sept
$ -10(-0.0%)
Precio Original
$ 500.000
Precio Actual
$ 499.990
Cambios de Precio
2

Información del agente

Diego Pablo Novello Bienes raíces adherido al sistema Coldwell Banker

Diego Pablo Novello Bienes raíces adherido al sistema Coldwell Banker

¿Sos de esta inmobiliaria?

Reclamá tu perfil gratis y conseguí más leads calificados con IA. Sin comisiones, sin límites.

Conocer más

Información sobre los datos

Los derechos de los datos de esta propiedad pertenecen a la inmobiliaria correspondiente. Roomix utiliza múltiples fuentes de portales inmobiliarios como ZonaProp, Argenprop, Mercado Libre y otros para indexar y mostrar propiedades disponibles en Argentina. Esta información se presenta únicamente con fines informativos y de búsqueda.

Propiedades cercanas

Propiedades similares