Semipiso a Reciclar en Venta en Recoleta, Capital Federal

Apartamento · 10 ambientes · 10 dormitorios · 3 baños · 194 m²

Avenida Córdoba 2401, Recoleta, Capital Federal
USD 170.000
0
En venta

Características principales de la propiedad

Tipo

Apartamento

Dormitorios

10

Baños

3

Ambientes

10

Área Total

194

Área Cubierta

194

Antigüedad

20 años

Publicado

8 de noviembre de 2024

Descripción

Semipiso a reciclar 10 habitaciones, 3º piso al frente. Zona de facultades. Hoy funciona hotel residencial. Recoleta, CABA > Ubicado sobre Av Córdoba entre Azcuénaga y Larrea. Muy buenos accesos, medios de locomoción, zona de facultades. > Tercer piso al frente de un edificio de 5 pisos, con 12 UF ,...

Características

RecicladoCerca de transporte publicoApto para estudiantesCon expensasIdeal para renovacion

Ubicación

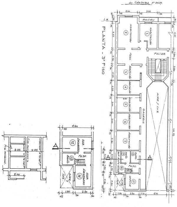
Planos

Plano 1

Análisis de mercado

Historial de Precios

Evolución del precio desde la publicación original

USD 170.000
Precio actual
Esta propiedad bajó un 8.1% su precio desde que se publicó
8 nov - 25 sept
USD -15.000(-8.1%)
Precio Original
USD 185.000
Precio Actual
USD 170.000
Cambios de Precio
2

Información del agente

I

Inmobiliaria

¿Sos de esta inmobiliaria?

Reclamá tu perfil gratis y conseguí más leads calificados con IA. Sin comisiones, sin límites.

Conocer más

Información sobre los datos

Los derechos de los datos de esta propiedad pertenecen a la inmobiliaria correspondiente. Roomix utiliza múltiples fuentes de portales inmobiliarios como ZonaProp, Argenprop, Mercado Libre y otros para indexar y mostrar propiedades disponibles en Argentina. Esta información se presenta únicamente con fines informativos y de búsqueda.

Propiedades cercanas

Propiedades similares