Departamento 2 ambientes en alquiler – Luminoso, con balcón en Almagro

Apartamento · 2 ambientes · 1 dormitorios · 1 baños · 46 m²

Panamá 900, Almagro Norte, Almagro
$ 680.000
+ $ 100.000 expensas
En alquiler

Características principales de la propiedad

Tipo

Apartamento

Dormitorios

1

Baños

1

Ambientes

2

Área Total

46

Área Cubierta

41

Antigüedad

45 años

Publicado

23 de septiembre de 2025

Descripción

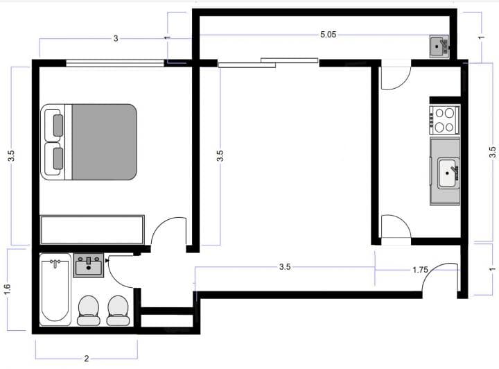
Alquiler de excelente departamento 2 ambientes en Almagro, ubicado en Panamá al 900. Living-comedor (3.5 x 4.5mts) con salida a balcón (5x1mts(¿) Cocina independiente (3,5x1.7mts) con muebles completos y conexión para lavarropas. Dormitorio (3.5x3mts) con placard empotrado. Baño completo (1.6x2m...

Características

Vista al contrafrenteMuy luminosoOrientacion noroesteAire acondicionadoAscensorCon expensasCerca de transporte publico

Ubicación

Planos

Plano 1

Información del agente

Ana Corradi

Ana Corradi

¿Sos de esta inmobiliaria?

Reclamá tu perfil gratis y conseguí más leads calificados con IA. Sin comisiones, sin límites.

Conocer más

Información sobre los datos

Los derechos de los datos de esta propiedad pertenecen a la inmobiliaria correspondiente. Roomix utiliza múltiples fuentes de portales inmobiliarios como ZonaProp, Argenprop, Mercado Libre y otros para indexar y mostrar propiedades disponibles en Argentina. Esta información se presenta únicamente con fines informativos y de búsqueda.

Propiedades cercanas

Propiedades similares