Venta Departamento 2 Ambientes Belgrano - Lm Campos 1300 - Pozo - Balcon - Financia - Apto Blanqueo - Oct 2025

Apartamento · 2 ambientes · 1 dormitorios · 1 baños · 57 m²

Luis Maria Campos al 1300, Belgrano, Capital Federal
USD 200.500
0
En venta

Características principales de la propiedad

Tipo

Apartamento

Dormitorios

1

Baños

1

Ambientes

2

Área Total

57

Área Cubierta

45

Publicado

8 de noviembre de 2024

Descripción

VENTA Departamento 2 Ambientes en Belgrano con balcón. A ESTRENAR! FECHA ENTREGA: OCT 2025APTO BLANQUEOPosibilidad financiación! 40% anticipo y cuotas.El edificio está ubicado en Av. Luis María Campos 1363, en un barrio ideal para elevar tu nivel de vida. El proyecto cuenta con unidades de 1 y 2 amb...

Características

Apto para estudiantesApto para mascotasCerca de transporte publicoPiletaTerrazaCocheraCon garantiaCon expensasApto creditoApto profesionalA estrenarBalconIdeal para alquilerSUMVista al pulmon de manzana

Ubicación

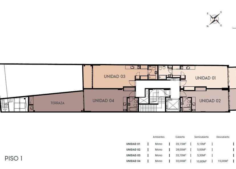
Planos

Plano 1
Plano 2
Plano 3
Plano 4
Plano 5
Plano 6
Plano 7
Plano 8
Plano 9
Plano 10

Análisis de mercado

Información del agente

I

Inmobiliaria

¿Sos de esta inmobiliaria?

Reclamá tu perfil gratis y conseguí más leads calificados con IA. Sin comisiones, sin límites.

Conocer más

Información sobre los datos

Los derechos de los datos de esta propiedad pertenecen a la inmobiliaria correspondiente. Roomix utiliza múltiples fuentes de portales inmobiliarios como ZonaProp, Argenprop, Mercado Libre y otros para indexar y mostrar propiedades disponibles en Argentina. Esta información se presenta únicamente con fines informativos y de búsqueda.

Propiedades cercanas

Propiedades similares